ビジネスのお客様
YKK AP for business
開く
TOP
住宅商品
エクステリア/外装 商品
ビル商品
産業製品
法令・制度
ショールーム
お客様サポート
個人のお客様
Global(企業情報)
WEBカタログ
ソーシャルメディア一覧
A-PLUG(工務店・リフォーム店向け)
検索する
ビジネスのお客様 HOME
データダウンロード
CADデータダウンロード
ビル用商品
改装商品
窓改修
GRAF工法
エピソードNEO-LB 防火窓
CADデータ
ダウンロード
TOP
住宅
商品から探す
カタログから探す
ビル
商品から探す
カタログから探す
ガーデンエクステリア
商品から探す
3次元エクステリア
汎用3次元CAD
RIK CAD用
JavaScriptを有効にしてお使いください
JavaScriptの設定方法は
こちらの検索結果
を参考にしてください
カテゴリー検索
商品名
窓種
ビル用ウインドウ・ドア
引違い窓
70見込・RC枠
EXIMA31
超高層集合住宅向け
片引き窓
70見込・RC枠
EXIMA31
超高層集合住宅向け
両袖片引き窓
70見込・RC枠
EXIMA31
超高層集合住宅向け
枠バリエーション
EXIMA31
超高層集合住宅向け
納まり参考図
EXIMA31
超高層集合住宅向け
防火商品
引違い窓
70見込・RC枠
BGE31Wb
FIX窓
70見込・RC枠
BGE31
70見込・鉄骨枠 半外付型
BGE31
納まり参考図
BGE31Wb
改装商品
窓改修
GRAF工法
エピソードNEO-LB
エピソードNEO-LB 防火窓
カバー工法(躯体固定)
BGE31
内窓
樹脂製
キーワード検索
すべて
このカテゴリーから
検索する
新規・更新データのみ
選択データの確認とダウンロード(
0
件)
1 - 1 / 1
商品名
確認図面
図面データのダウンロード
全て選択する
詳細図
新規・更新
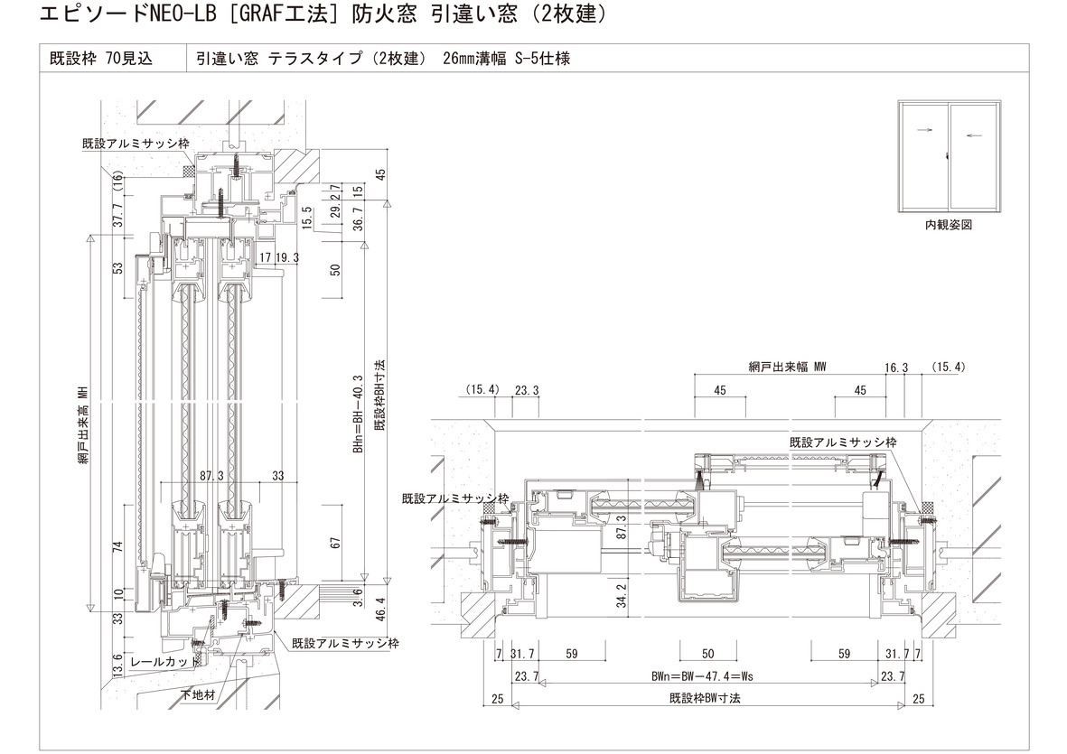
エピソードNEO-LB[GRAF工法] 防火窓 既設枠 70見込 引違い窓 テラスタイプ(2枚建) 26mm溝幅 S-5仕様
DWG
|
JWW
|
DXF
選択する
1 - 1 / 1