キーワード検索
商品名 確認図面 図面データのダウンロード
全て選択する
詳細図 新規・更新
EXIMA31 超高層集合住宅向けウインドウ ガスケット仕様 RC枠 引違い窓(2枚建) Eタイプ/36mm溝幅(T-2仕様)
E25262001-A
詳細図 新規・更新
EXIMA31 超高層集合住宅向けウインドウ ガスケット仕様 RC枠 引違い窓(2枚建) Fタイプ/36mm溝幅(T-2仕様)
E25262001-B
詳細図 新規・更新
EXIMA31 超高層集合住宅向けウインドウ ガスケット仕様 RC枠 片引き窓【外動タイプ】 Eタイプ/36mm溝幅(T-2仕様)
E25262002-A
詳細図 新規・更新
EXIMA31 超高層集合住宅向けウインドウ ガスケット仕様 RC枠 片引き窓【外動タイプ】 Fタイプ/36mm溝幅(T-2仕様)
E25262002-B
詳細図 新規・更新
EXIMA31 超高層集合住宅向けウインドウ ガスケット仕様 RC枠 両袖片引き窓【外動タイプ】 Fタイプ/36mm溝幅(T-2仕様)
E25262003
詳細図 新規・更新
EXIMA31 超高層集合住宅向けウインドウ ガスケット仕様 RC枠 枠バリエーション [スライディング系窓](1)(2)
E25262008
詳細図 新規・更新
EXIMA31 超高層集合住宅向けウインドウ ガスケット仕様 RC枠 枠バリエーション [スライディング系窓](3)~(5)
E25262004
詳細図 新規・更新
EXIMA31 超高層集合住宅向けウインドウ ガスケット仕様 納まり参考図 RC納まり 引違い窓 Eタイプ/36mm溝幅
E25262006
詳細図 新規・更新
EXIMA31 超高層集合住宅向けウインドウ ガスケット仕様 納まり参考図 RC納まり 片引き窓【外動タイプ】 Eタイプ/35(FIX部42)mm溝幅
E25262010
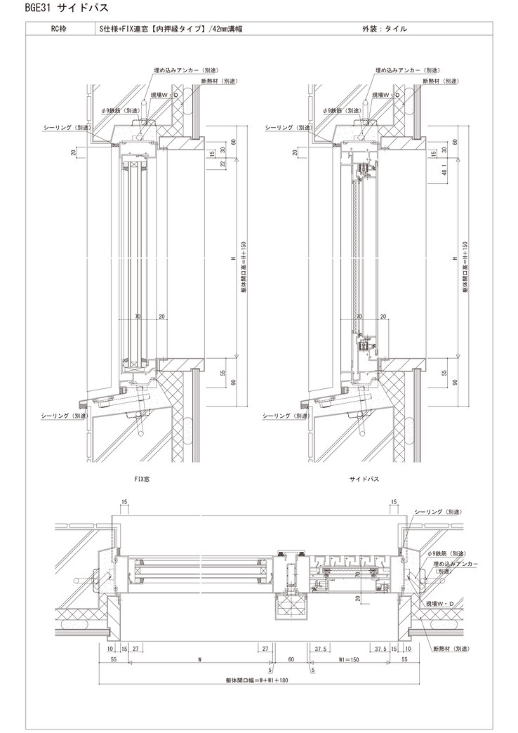
詳細図 新規・更新
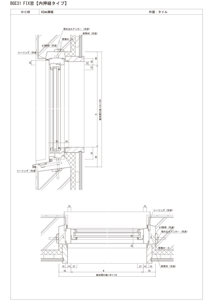
[大臣認定防火設備(個別認定)]BGE31 FIX窓【内押縁タイプ】RC枠/18mm溝幅
E19219001-A
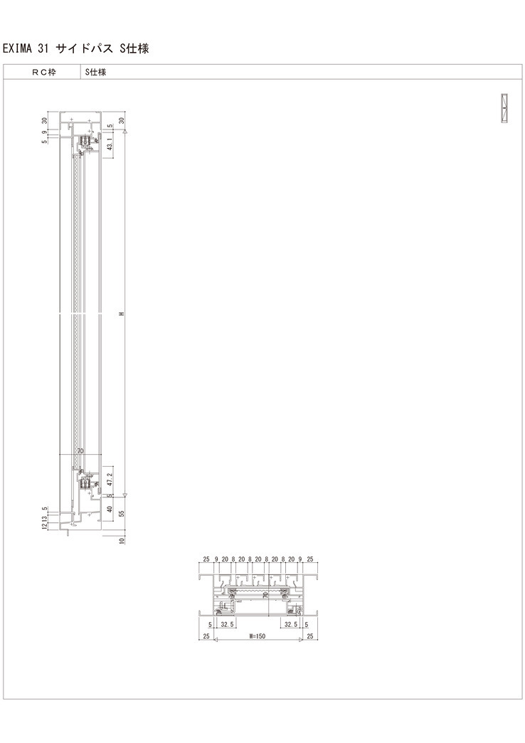
詳細図 新規・更新
[大臣認定防火設備(個別認定)]BGE31 FIX窓【内押縁タイプ】RC枠/35mm溝幅 Low-E複層ガラス(断熱タイプ)
E19219001-B
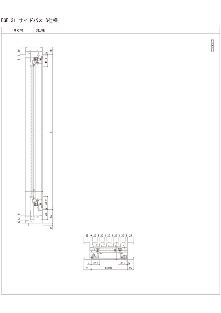
詳細図 新規・更新
[大臣認定防火設備(個別認定)]BGE31 FIX窓【外押縁タイプ】RC枠/18mm溝幅
E19216004-A
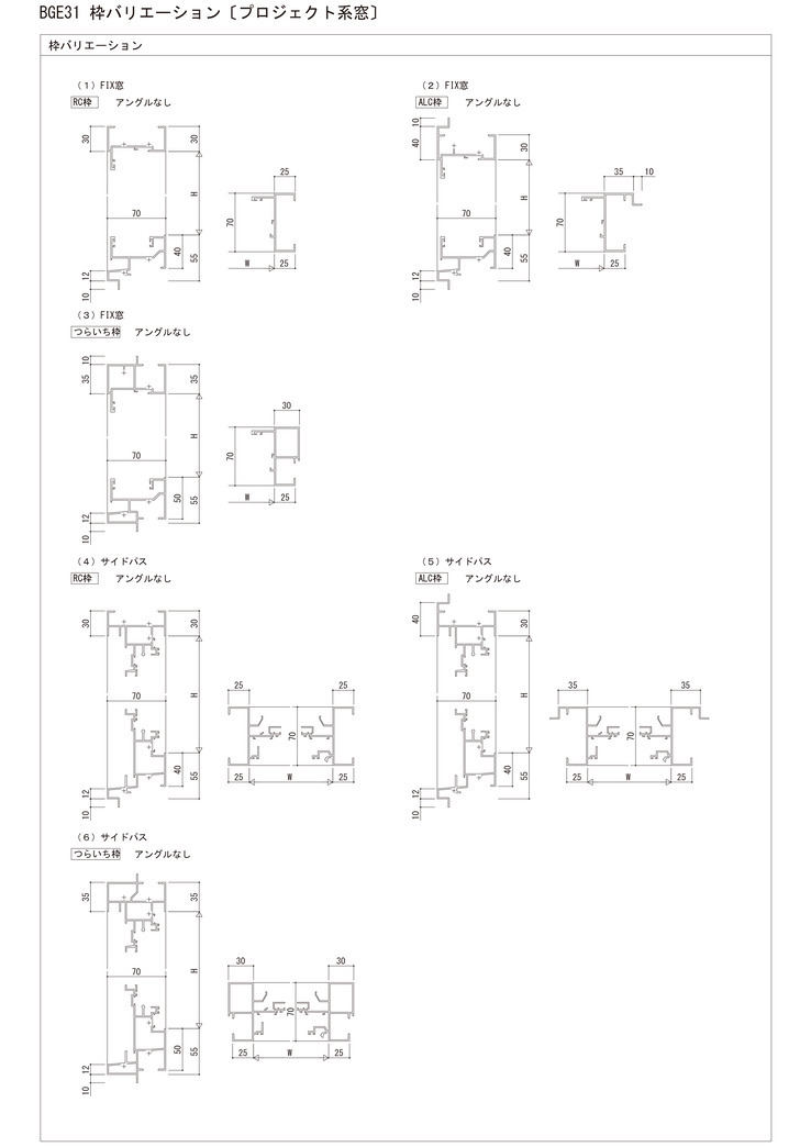
詳細図 新規・更新
[大臣認定防火設備(個別認定)]BGE31 FIX窓【外押縁タイプ】RC枠/35mm溝幅
E19216004-B
詳細図 新規・更新
[大臣認定防火設備(個別認定)]BGE31 FIX窓【内押縁タイプ】鉄骨半外付枠 18mm溝幅
E19216032
詳細図 新規・更新
[大臣認定防火設備(個別認定)]BGE31 FIX窓【外押縁タイプ】鉄骨枠(半外付) 18mm溝幅
E21216018
詳細図 新規・更新
[大臣認定 防火設備(個別認定)] BGE31Wb [沖縄向け] 引違い窓 2枚建 RC枠 Cタイプ 23mm溝幅
E20206001-A
詳細図 新規・更新
[大臣認定 防火設備(個別認定)] BGE31Wb [沖縄向け] 引違い窓 2枚建 RC枠 Eタイプ 23mm溝幅
E20206001-B
詳細図 新規・更新
[大臣認定 防火設備(個別認定)] BGE31Wb [沖縄向け] 納まり参考図 RC納まり 引違い窓(2枚建) Eタイプ 23mm溝幅【WS10E型 可動網戸付】 外装:タイル
E20206005
詳細図 新規・更新
[大臣認定 防火設備(個別認定)] BGE31Wb [沖縄向け] 納まり参考図 ALC納まり 引違い窓(2枚建) Cタイプ 23mm溝幅(T-2仕様)【WS10E型 可動網戸付】 外装:ALC板
E20206006
詳細図 新規・更新
[大臣認定 防火設備(個別認定)] BGE31Wb [沖縄向け] 納まり参考図(防火戸連結材) RC納まり 引違い窓(2枚建) Cタイプ+FIX窓【内押縁タイプ】 35mm溝幅(T-2仕様) 外装:タイル
E20206008
詳細図 新規・更新
[大臣認定防火設備(個別認定)]改装商品 BGE31 カバー工法(躯体固定) たてすべり出し窓35mm溝幅
E25214005
詳細図 新規・更新
エピソードNEO-LB[GRAF工法] 既設枠 70見込 引違い窓 テラスタイプ(2枚建) 26mm溝幅 S-4仕様
E25217001-B
詳細図 新規・更新
エピソードNEO-LB[GRAF工法] 既設枠 KJB型 引違い窓 テラスタイプ(2枚建) 高強度 26mm溝幅 S-4仕様
E25217002-A
詳細図 新規・更新
エピソードNEO-LB[GRAF工法] 既設枠 KJB型 引違い窓 テラスタイプ(2枚建) 26mm溝幅 S-5仕様
E25217003-B
詳細図 新規・更新
エピソードNEO-LB[GRAF工法] 既設枠 KJB型 引違い窓 テラスタイプ(2枚建) サポートハンドル 26mm溝幅 S-5仕様
E25217004-A
詳細図 新規・更新
エピソードNEO-LB[GRAF工法] 防火窓 既設枠 70見込 引違い窓 テラスタイプ(2枚建) 26mm溝幅 S-5仕様
E25217005-B
詳細図 新規・更新
ウチリモ 内窓 引違い窓(2・4枚建) 後付改修 既設:引違い窓(2枚建)/内窓:ウチリモ 引違い窓(2・4枚建) 窓タイプ 18mm溝幅(ふかし枠25仕様)
E25214014
詳細図 新規・更新
ウチリモ 内窓 引違い窓(2・4枚建) 後付改修 既設:引違い窓(2枚建)/内窓:ウチリモ 引違い窓(2・4枚建) テラスタイプ/ランマ通しタイプ 18mm溝幅(ふかし枠25仕様)
E25214015
詳細図 新規・更新
ウチリモ 内窓 引違い窓(3枚建/偏芯2・4枚建) 後付改修 既設:引違い窓(2枚建)/FIX連窓 内窓:ウチリモ 引違い窓(3枚建) 18mm溝幅(ふかし枠25仕様)
E25214007