ビジネスのお客様
YKK AP for business
開く
TOP
住宅商品
エクステリア/外装 商品
ビル商品
産業製品
法令・制度
ショールーム
お客様サポート
個人のお客様
Global(企業情報)
WEBカタログ
ソーシャルメディア一覧
A-PLUG(工務店・リフォーム店向け)
検索する
ビジネスのお客様 HOME
データダウンロード
CADデータダウンロード
ビル用商品
スチール商品
CADデータ
ダウンロード
TOP
住宅
商品から探す
カタログから探す
ビル
商品から探す
カタログから探す
ガーデンエクステリア
商品から探す
3次元エクステリア
汎用3次元CAD
RIK CAD用
JavaScriptを有効にしてお使いください
JavaScriptの設定方法は
こちらの検索結果
を参考にしてください
カテゴリー検索
商品名
窓種
スチール商品
玄関ドア
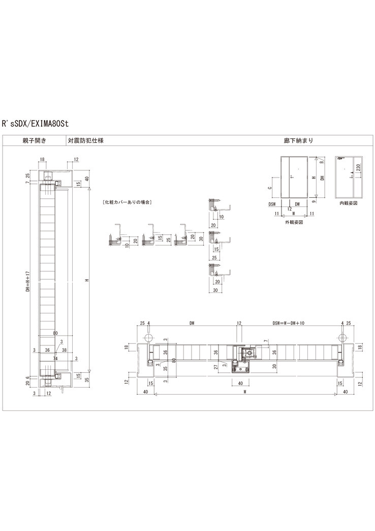
R'sSDX
対震防犯仕様
EXIMA80St
対震防犯仕様
ステンレス商品
沖縄向け 玄関ドア メーランド
改装商品
教育施設向け ウチリモ 内窓
キーワード検索
すべて
このカテゴリーから
検索する
新規・更新データのみ
選択データの確認とダウンロード(
0
件)
1 - 2 / 2
商品名
確認図面
図面データのダウンロード
全て選択する
詳細図
新規・更新
玄関ドア R's SDX/EXIMA 80St 親子開き 対震防犯仕様 廊下納まり
DWG
|
JWW
|
DXF
選択する
詳細図
新規・更新
玄関ドア R's SDX/EXIMA 80St 袖パネル付 対震防犯仕様
DWG
|
JWW
|
DXF
選択する
1 - 2 / 2