| 商品名 | 確認図面 |
図面データのダウンロード 全て選択する |
|
|---|---|---|---|
|
|
詳細図
新規・更新
[大臣認定防火設備(個別認定)]改装商品 BGE31 カバー工法(躯体固定) たてすべり出し窓35mm溝幅
|
||
|
|
詳細図
新規・更新
エピソードNEO-LB[GRAF工法] 既設枠 70見込 引違い窓 テラスタイプ(2枚建) 26mm溝幅 S-4仕様
|
||
|
|
詳細図
新規・更新
エピソードNEO-LB[GRAF工法] 既設枠 KJB型 引違い窓 テラスタイプ(2枚建) 高強度 26mm溝幅 S-4仕様
|
||
|
|
詳細図
新規・更新
エピソードNEO-LB[GRAF工法] 既設枠 KJB型 引違い窓 テラスタイプ(2枚建) 26mm溝幅 S-5仕様
|
||
|
|
詳細図
新規・更新
エピソードNEO-LB[GRAF工法] 既設枠 KJB型 引違い窓 テラスタイプ(2枚建) サポートハンドル 26mm溝幅 S-5仕様
|
||
|
|
詳細図
新規・更新
エピソードNEO-LB[GRAF工法] 防火窓 既設枠 70見込 引違い窓 テラスタイプ(2枚建) 26mm溝幅 S-5仕様
|
||
|
|
詳細図
新規・更新
ウチリモ 内窓 引違い窓(2・4枚建) 後付改修 既設:引違い窓(2枚建)/内窓:ウチリモ 引違い窓(2・4枚建) 窓タイプ 18mm溝幅(ふかし枠25仕様)
|
||
|
|
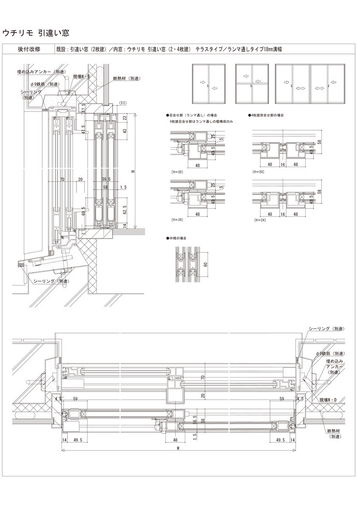
詳細図
新規・更新
ウチリモ 内窓 引違い窓(2・4枚建) 後付改修 既設:引違い窓(2枚建)/内窓:ウチリモ 引違い窓(2・4枚建) テラスタイプ/ランマ通しタイプ 18mm溝幅(ふかし枠25仕様)
|
||
|
|
詳細図
新規・更新
ウチリモ 内窓 引違い窓(3枚建/偏芯2・4枚建) 後付改修 既設:引違い窓(2枚建)/FIX連窓 内窓:ウチリモ 引違い窓(3枚建) 18mm溝幅(ふかし枠25仕様)
|
||