キーワード検索
商品名 確認図面 図面データのダウンロード
全て選択する
詳細図 新規・更新
エピソードII 防火窓 GNEO 引違い窓 窓タイプ 半外付型/アングル一体枠 在来
E21141016
詳細図 新規・更新
エピソードII 防火窓 GNEO 面格子付引違い窓 たて格子・井桁格子・横格子・ラチス格子 半外付型/アングル一体枠 在来
E21141017
詳細図 新規・更新
エピソードII 防火窓 GNEO 引違い窓 窓タイプ クレセントダウンオーダー対応品 半外付型/アングル一体枠 在来
E21141018
詳細図 新規・更新
エピソードII 防火窓 GNEO 引違い窓 テラスタイプ 半外付型/アングル一体枠 在来
E21141019
詳細図 新規・更新
エピソードII 防火窓 GNEO 引違い窓 テラスタイプ 2×4 テラス/2×4
E21141021
詳細図 新規・更新
エピソードII 防火窓 GNEO 引違い窓 テラスタイプ (耐熱強化複層ガラス仕様) 半外付型/アングル一体枠 在来
E21141023
詳細図 新規・更新
エピソードII 防火窓 GNEO 引違い窓 テラスタイプ サポート引手・サポートハンドル付 半外付型/アングル一体枠 在来
E21141020
詳細図 新規・更新
エピソードII 防火窓 GNEO 引違い窓 テラスタイプ サポート引手・サポートハンドル付 2×4
E21141022
詳細図 新規・更新
エピソードII 防火窓 GNEO-R 引違い窓 窓タイプ 半外付型/アングル一体枠/引違い窓 窓タイプ クレセントダウンオーダー対応品 半外付型/アングル一体枠 在来
E21141024
詳細図 新規・更新
エピソードII 防火窓 GNEO-R 引違い窓 テラスタイプ 半外付型/アングル一体枠 在来
E21141025
詳細図 新規・更新
エピソードII 防火窓 GNEO-R 引違い窓 テラスタイプ 単純段差下枠仕様 2×4
E21141027
詳細図 新規・更新
エピソードII 防火窓 GNEO-R 引違い窓 テラスタイプ (耐熱強化複層ガラス) 半外付型/アングル一体枠 在来
E21141028
詳細図 新規・更新
エピソードII 防火窓 GNEO-R 引違い窓 テラスタイプ サポート引手・サポートハンドル付 半外付型/アングル一体枠 在来
E21141026
詳細図 新規・更新
スチール折板屋根ふき材 テラス囲い/ジーテラスneo テラス囲い 土間納まり 平面図・側面図
E20397008
詳細図 新規・更新
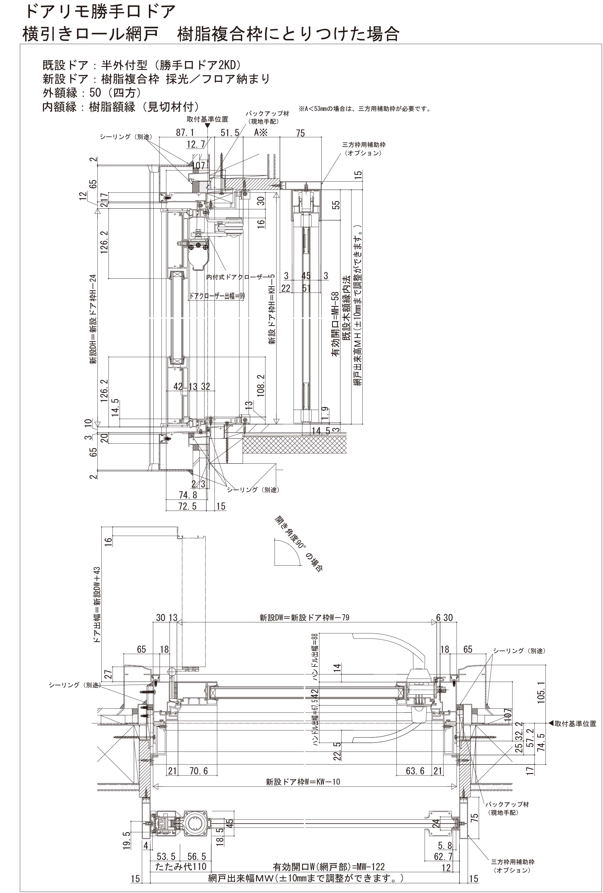
ドアリモ 玄関ドア D30 断熱ドア D2仕様 ランマ無 片開き・親子・両開き・片袖FIX・両袖FIX・袖付親子枠 既設ドア:内付型(ハイドア) 内額縁:40 外額縁:21 たて断面図
E23008001
詳細図 新規・更新
ドアリモ 玄関ドア D30 断熱ドア D2仕様 ランマ無 片開き・親子・両開き・片袖FIX・両袖FIX・袖付親子枠 既設ドア:内付型(ハイドア) 内額縁:40 外額縁:21 横断面図01
E23008002
詳細図 新規・更新
ドアリモ 玄関ドア D30 断熱ドア D2仕様 ランマ無 片開き・親子・両開き・片袖FIX・両袖FIX・袖付親子枠 既設ドア:内付型(ハイドア) 内額縁:40 外額縁:21 横断面図02
E23008003
詳細図 新規・更新
ドアリモ 玄関ドア D30 断熱ドア D2仕様 ランマ無 両開き枠 既設玄関引戸:玄関引戸70 II型/玄関引戸40型 内額縁:40 外額縁:21
E25194039
詳細図 新規・更新
ドアリモ 玄関ドア D30 断熱ドア D2仕様 ランマ無 両開き枠 既設玄関引戸:玄関引戸(千本格子)/玄関引戸80型 内額縁:40 外額縁:80B(厚見込)
E25194040
詳細図 新規・更新
ドアリモ 玄関ドア D30 断熱ドア D2仕様 ランマ付 片開き・親子・両開き・片袖FIX・両袖FIX・袖付親子枠/既設ドア:半外付型(プロント)/内額縁100/外額縁80K(薄見込)
E25194017
詳細図 新規・更新
ドアリモ 玄関ドア D30 断熱ドア D2仕様 ランマ付 片開き・親子・両開き・片袖FIX・両袖FIX・袖付親子枠/既設ドア:半外付型(プロント)/内額縁100/外額縁80K(薄見込)
E25194018
詳細図 新規・更新
ドアリモ 玄関ドア D30 断熱ドア D4仕様 ランマ無 片開き・親子・両開き・片袖FIX・両袖FIX・袖付親子枠 既設ドア:内付型(ハイドア) 内額縁:40 外額縁:21
E23008006
詳細図 新規・更新
ドアリモ 玄関ドア D30 断熱ドア D4仕様 ランマ無 片開き・親子・両開き・片袖FIX・両袖FIX・袖付親子枠 既設ドア:内付型(ハイドア) 内額縁:40 外額縁:21 横断面図02
E23008008
詳細図 新規・更新
ドアリモ 玄関ドア D30 断熱ドア D2仕様 ランマ無 片開き枠 既設ドア:内付型(アプローズ) 内額縁:40 外額縁:135
E23008009
詳細図 新規・更新
ドアリモ 玄関ドア D30 断熱ドア D4仕様 ランマ付 片開き・親子・両開き・片袖FIX・両袖FIX枠 既設ドア:半外付型(プロント) 内額縁:40 外額縁:50 たて断面図
E23008010
詳細図 新規・更新
ドアリモ 玄関ドア D30 断熱ドア D4仕様 ランマ付 片開き・親子・両開き・片袖FIX・両袖FIX枠 既設ドア:半外付型(プロント) 内額縁:40 外額縁:50 横断面図
E23008011
詳細図 新規・更新
ドアリモ 玄関ドア D30 断熱ドア ランマ付 片袖FIX枠 既設ドア:半外付型(プロント) 内額縁:40+ラフォレスタ 外額縁:100 たて断面図
E23008012
詳細図 新規・更新
ドアリモ 玄関ドア D30 断熱ドア ランマ付 片袖FIX枠 既設ドア:半外付型(プロント) 内額縁:40+ラフォレスタ 外額縁:100 横断面図
E23008013
詳細図 新規・更新
ドアリモ 玄関ドア D30 断熱ドア ランマ無 親子・両開き枠 既設ドア:内付型(ハイドア) 内額縁:ラフォレスタ 外額縁:21
E23008014
詳細図 新規・更新
ドアリモ 玄関ドア D30 断熱ドア・アルミドア 下枠納まり例 既設ドア:半外付型
E23008015
詳細図 新規・更新
ドアリモ 玄関ドア D30 木製納まりの場合 新設ドア:断熱ドア D2仕様 親子・両開き枠 内額縁:ラフォレスタ 外額縁:100
E23008016
詳細図 新規・更新
ドアリモ 玄関ドア D30 下枠はつり・入隅納まりの場合 新設ドア:断熱ドア D2仕様 親子・両開き枠 既設ドア:内付型(ハイドア) 内額縁:40 外額縁:50・入隅側たて:21
E23008017
詳細図 新規・更新
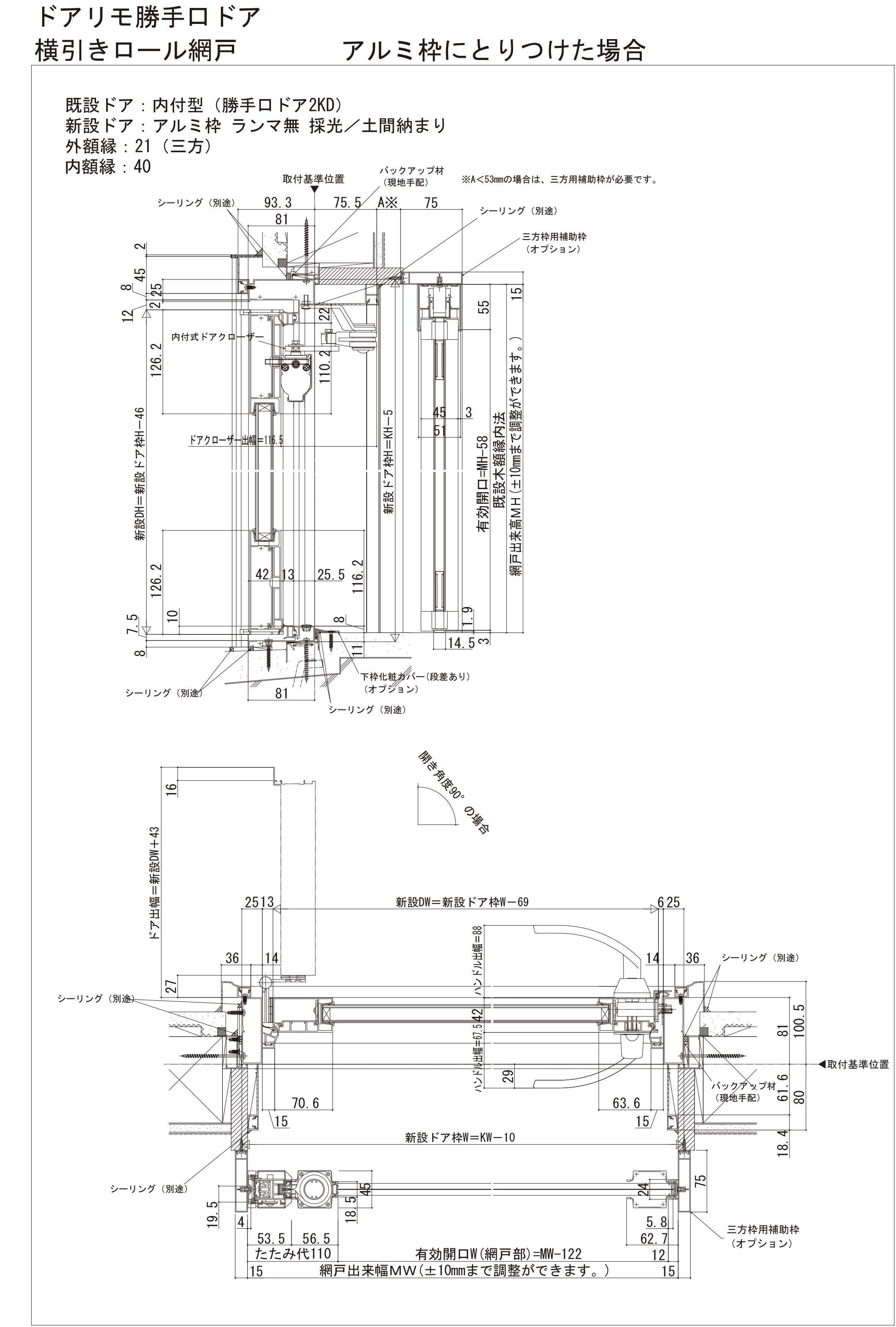
ドアリモ 玄関ドア D30 アルミドア ランマ無 片開き・親子・両開き・片袖FIX・両袖FIX・袖付親子枠 既設ドア:内付型(ハイドア) 内額縁:40 外額縁:21 たて断面図
E23008018
詳細図 新規・更新
ドアリモ 玄関ドア D30 アルミドア ランマ無 片開き・親子・両開き・片袖FIX・両袖FIX・袖付親子枠 既設ドア:内付型(ハイドア) 内額縁:40 外額縁:21 横断面図01
E23008019
詳細図 新規・更新
ドアリモ 玄関ドア D30 アルミドア ランマ無 片開き・親子・両開き・片袖FIX・両袖FIX・袖付親子枠 既設ドア:内付型(ハイドア) 内額縁:40 外額縁:21 横断面図02
E23008020
詳細図 新規・更新
ドアリモ 玄関ドア D30 アルミドア ランマ付 片開き・親子・両開き・片袖FIX・両袖FIX・袖付親子枠 既設ドア:半外付型(プロント) 内額縁:40 外額縁:80
E23008021
詳細図 新規・更新
ドアリモ 玄関ドア D30 アルミドア ランマ付 片開き・親子・両開き・片袖FIX・両袖FIX・袖付親子枠 既設ドア:半外付型(プロント) 内額縁:40 外額縁:80 横断面図
E23008022
詳細図 新規・更新
ドアリモ 玄関ドア D30 断熱ドア・アルミドア ランマ無 片開き・親子・両開き・片袖FIX・両袖FIX・袖付親子枠 既設ドア:内付型 たて断面図01
E23008023
詳細図 新規・更新
ドアリモ 玄関ドア D30 断熱ドア・アルミドア ランマ無 片開き・親子・両開き・片袖FIX・両袖FIX・袖付親子枠 既設ドア:内付型 たて断面図02
E23008024
詳細図 新規・更新
ドアリモ 玄関ドア D30 断熱ドア・アルミドア ランマ付 片開き・親子・両開き・片袖FIX・両袖FIX・袖付親子枠 既設ドア:内付型 たて断面図01
E23008025
詳細図 新規・更新
ドアリモ 玄関ドア D30 断熱ドア・アルミドア ランマ付 片開き・親子・両開き・片袖FIX・両袖FIX・袖付親子枠 既設ドア:内付型 たて断面図02
E23008026
詳細図 新規・更新
ドアリモ 玄関ドア D30 断熱ドア・アルミドア ランマ無 片開き・親子・両開き・片袖FIX・両袖FIX・袖付親子枠 既設ドア:内付型 横断面図01
E23008027
詳細図 新規・更新
ドアリモ 玄関ドア D30 断熱ドア・アルミドア ランマ無 片開き・親子・両開き・片袖FIX・両袖FIX・袖付親子枠 既設ドア:内付型 横断面図02
E23008028
詳細図 新規・更新
ドアリモ 玄関ドア D30 断熱ドア・アルミドア ランマ無 片開き・親子・両開き・片袖FIX・両袖FIX・袖付親子枠 既設ドア:内付型 横断面図03
E23008029
詳細図 新規・更新
ドアリモ 玄関ドア D30 断熱ドア・アルミドア ランマ無 片開き・親子・両開き・片袖FIX・両袖FIX・袖付親子枠 既設ドア:半外付型 たて断面図01
E23008030
詳細図 新規・更新
ドアリモ 玄関ドア D30 断熱ドア・アルミドア ランマ無 片開き・親子・両開き・片袖FIX・両袖FIX・袖付親子枠 既設ドア:半外付型 たて断面図02
E23008031
詳細図 新規・更新
ドアリモ 玄関ドア D30 断熱ドア・アルミドア ランマ付 片開き・親子・両開き・片袖FIX・両袖FIX・袖付親子枠 既設ドア:半外付型 たて断面図01
E23008032
詳細図 新規・更新
ドアリモ 玄関ドア D30 断熱ドア・アルミドア ランマ付 片開き・親子・両開き・片袖FIX・両袖FIX・袖付親子枠 既設ドア:半外付型 たて断面図02
E23008033
詳細図 新規・更新
ドアリモ 玄関ドア D30 断熱ドア・アルミドア ランマ無 片開き・親子・両開き・片袖FIX・両袖FIX・袖付親子枠 既設ドア:半外付型 横断面図01
E23008034
詳細図 新規・更新
ドアリモ 玄関ドア D30 断熱ドア・アルミドア ランマ無 片開き・親子・両開き・片袖FIX・両袖FIX・袖付親子枠 既設ドア:半外付型 横断面図02
E23008035