カテゴリー検索
商品名
-
ガーデンエクステリア
- リレーリア
- 門まわり
- フェンス
- 車庫まわり
- 庭まわり
- デッキまわり
- 【2026年1月9日発売】
リウッドデッキ S - 【2026年1月9日発売】
リウッド デッキフェンス - 【2026年1月9日発売】
リウッド ハイパーティション - 【2026年1月9日発売】
リウッド デッキ門扉 - 【2026年1月9日発売】
ルシアス デッキフェンス - 【2026年1月9日発売】
ルシアス ハイパーティション - 【2026年1月9日発売】
ルシアス デッキ門扉 - 【2026年1月9日発売】
シャローネ デッキフェンス - 【2026年1月8日販売終了】
リウッドデッキ200・200EG - 【2026年1月8日販売終了】
リウッド - 【2026年1月8日販売終了】
ルシアス デッキフェンス - 【2026年1月8日販売終了】
ルシアス デッキ門扉 - 【2026年1月8日販売終了】
シャローネ デッキフェンス - 濡れ縁
- 【2026年1月9日発売】
- バルコニー用デッキまわり
- トレリス
- ガーデン倶楽部 エスパリア シリーズ
- ガーデンライト
- ダウンライト
- デッキまわり
- パブリックエクステリア
- エクステリア共通
| 商品名 | 確認図面 |
図面データのダウンロード 全て選択する |
|
|---|---|---|---|
|
|
意匠図・建具表
【2026年1月9日発売】リウッドデッキ S 本体 縦張り 固定式 Cタイプ H=200 標準幕板
|
||
|
|
意匠図・建具表
【2026年1月9日発売】リウッドデッキ S 本体 縦張り 固定式 Sタイプ H=550 標準幕板
|
||
|
|
意匠図・建具表
【2026年1月9日発売】リウッドデッキ S 本体 縦張り 調整式 Tタイプ H=440~550 Hタイプ H=550~700 標準幕板
|
||
|
|
意匠図・建具表
【2026年1月9日発売】リウッドデッキ S 本体 縦張り 調整式 Lタイプ H=850~1000 標準幕板
|
||
|
|
意匠図・建具表
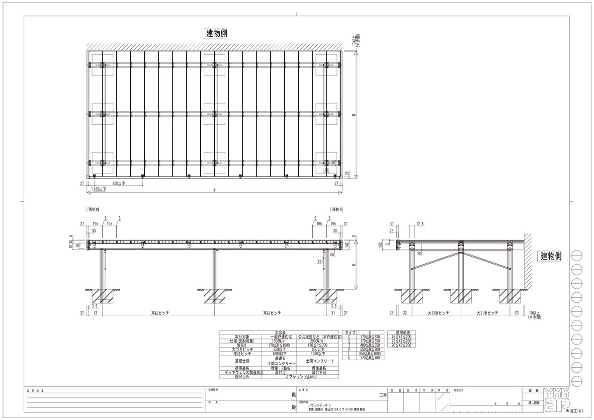
【2026年1月9日発売】リウッドデッキ S 本体 縦張り 埋込式 Uタイプ H=700 標準幕板
|
||
|
|
意匠図・建具表
【2026年1月9日発売】リウッドデッキ S 本体 縦張り 固定式 Sタイプ H=550 R幕板
|
||
|
|
意匠図・建具表
【2026年1月9日発売】リウッド デッキフェンス 1型
|
||
|
|
意匠図・建具表
【2026年1月9日発売】リウッド デッキフェンス 2型
|
||
|
|
意匠図・建具表
【2026年1月9日発売】リウッド デッキフェンス 3型
|
||
|
|
意匠図・建具表
【2026年1月9日発売】リウッド デッキフェンス 4型
|
||
|
|
意匠図・建具表
【2026年1月9日発売】リウッド ハイパーティション 1型
|
||
|
|
意匠図・建具表
【2026年1月9日発売】リウッド ハイパーティション 2型
|
||
|
|
意匠図・建具表
【2026年1月9日発売】リウッド デッキ門扉 1型
|
||
|
|
意匠図・建具表
【2026年1月9日発売】リウッド デッキ門扉 2型
|
||
|
|
意匠図・建具表
【2026年1月9日発売】リウッド デッキ門扉 3型
|
||
|
|
意匠図・建具表
【2026年1月9日発売】ルシアス デッキフェンス X01型
|
||
|
|
意匠図・建具表
【2026年1月9日発売】ルシアス デッキフェンス A01型
|
||
|
|
意匠図・建具表
【2026年1月9日発売】ルシアス デッキフェンス A02型
|
||
|
|
意匠図・建具表
【2026年1月9日発売】ルシアス デッキフェンス A03型
|
||
|
|
意匠図・建具表
【2026年1月9日発売】ルシアス デッキフェンス A04型
|
||
|
|
意匠図・建具表
【2026年1月9日発売】ルシアス デッキフェンス A05型
|
||
|
|
意匠図・建具表
【2026年1月9日発売】ルシアス デッキフェンス B01型
|
||
|
|
意匠図・建具表
【2026年1月9日発売】ルシアス デッキフェンス B02型
|
||
|
|
意匠図・建具表
【2026年1月9日発売】ルシアス デッキフェンス B03型
|
||
|
|
意匠図・建具表
【2026年1月9日発売】ルシアス デッキフェンス B04型
|
||
|
|
意匠図・建具表
【2026年1月9日発売】ルシアス デッキフェンス B05型
|
||
|
|
意匠図・建具表
【2026年1月9日発売】ルシアス ハイパーティション A01型
|
||
|
|
意匠図・建具表
【2026年1月9日発売】ルシアス ハイパーティション A03型
|
||
|
|
意匠図・建具表
【2026年1月9日発売】ルシアス ハイパーティション B05型
|
||
|
|
意匠図・建具表
【2026年1月9日発売】ルシアス デッキ門扉 A01型
|
||
|
|
意匠図・建具表
【2026年1月9日発売】ルシアス デッキ門扉 A02型
|
||
|
|
意匠図・建具表
【2026年1月9日発売】ルシアス デッキ門扉 A03型
|
||
|
|
意匠図・建具表
【2026年1月9日発売】ルシアス デッキ門扉 B03型
|
||
|
|
意匠図・建具表
【2026年1月9日発売】ルシアス デッキ門扉 B05型
|
||
|
|
意匠図・建具表
【2026年1月9日発売】シャローネ デッキフェンス 1型
|
||
|
|
意匠図・建具表
【2026年1月8日販売終了】リウッドデッキ200/200EG 縦張り 基本セット 固定式束柱タイプ 標準柱(F.L550) 積載荷重:1800N/m2
|
||
|
|
意匠図・建具表
【2026年1月8日販売終了】リウッドデッキ200/200EG 縦張り 2連棟セット 固定式束柱タイプ 標準柱(F.L550) 積載荷重:1800N/m2
|
||
|
|
意匠図・建具表
【2026年1月8日販売終了】リウッドデッキ200/200EG 縦張り 基本セット 調整式束柱タイプ ロング柱(F.L550-700) 標準柱 (F.L400-550) 積載荷重:1800N/m2
|
||
|
|
意匠図・建具表
【2026年1月8日販売終了】リウッドデッキ200/200EG 縦張り 2連棟セット 調整式束柱タイプ ロング柱(F.L550-700) 標準柱 (F.L400-550) 積載荷重:1800N/m2
|
||
|
|
意匠図・建具表
【2026年1月8日販売終了】リウッドデッキ200/200EG 縦張り 基本セット 埋込式束柱タイプ(F.L700) 積載荷重:1800N/m2
|
||
|
|
意匠図・建具表
【2026年1月8日販売終了】リウッドデッキ200/200EG 縦張り 2連棟セット 埋込式束柱タイプ(F.L700) 積載荷重:1800N/m2
|
||
|
|
意匠図・建具表
【2026年1月8日販売終了】ガーデン倶楽部 リウッドシリーズ リウッドデッキフェンス
|
||
|
|
意匠図・建具表
【2026年1月8日販売終了】ガーデン倶楽部 リウッドシリーズ リウッドハイパーティション
|
||
|
|
意匠図・建具表
【2026年1月8日販売終了】ガーデン倶楽部 リウッドシリーズ リウッドデッキ門扉
|
||
|
|
意匠図・建具表
【2026年1月8日販売終了】ルシアス デッキフェンス/ハイパーティション
|
||
|
|
意匠図・建具表
【2026年1月8日販売終了】ルシアス デッキ門扉
|
||
|
|
意匠図・建具表
【2026年1月8日販売終了】シャローネ デッキフェンス
|
||
|
|
意匠図・建具表
濡れ縁 壁付タイプ 奥行450 姿図
|
||
|
|
意匠図・建具表
濡れ縁 壁付タイプ 奥行600 姿図
|
||
|
|
意匠図・建具表
濡れ縁 独立タイプ 奥行600 姿図
|
||