カテゴリー検索
商品名

キーワード検索
絞り込み すべて意匠図・建具表詳細図
商品名 確認図面 図面データのダウンロード
全て選択する
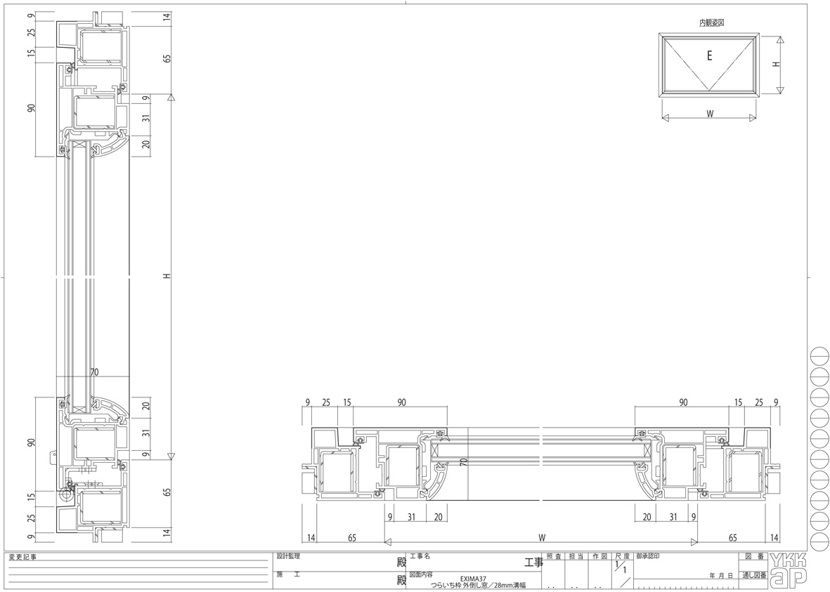
詳細図
EXIMA37 つらいち枠 外倒し窓/28mm溝幅
E17213005A
詳細図
EXIMA37 つらいち枠 外倒し窓/34mm溝幅
E17213005B
詳細図
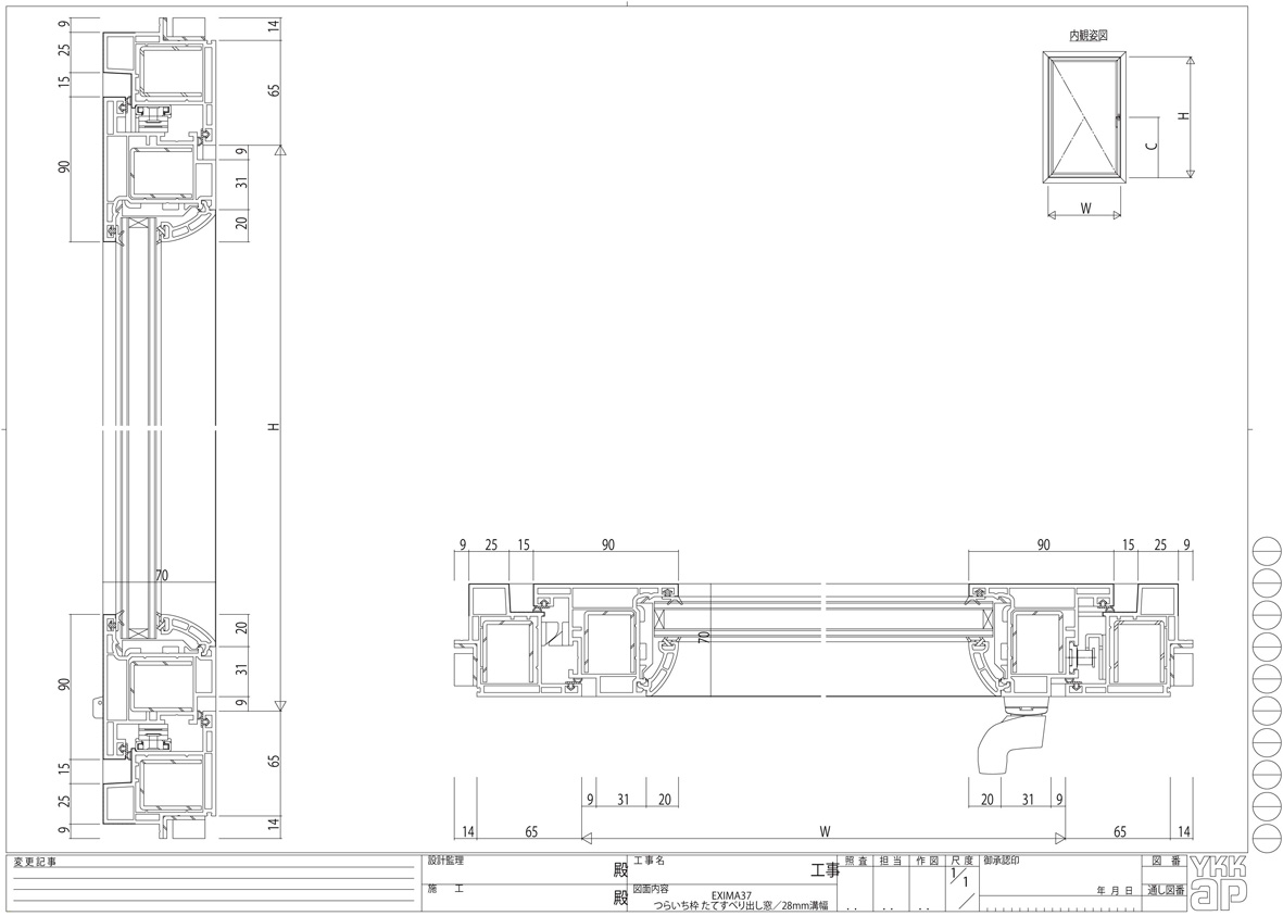
EXIMA37 つらいち枠 たてすべり出し窓 グレモンハンドル/28mm溝幅
E17213006A
詳細図
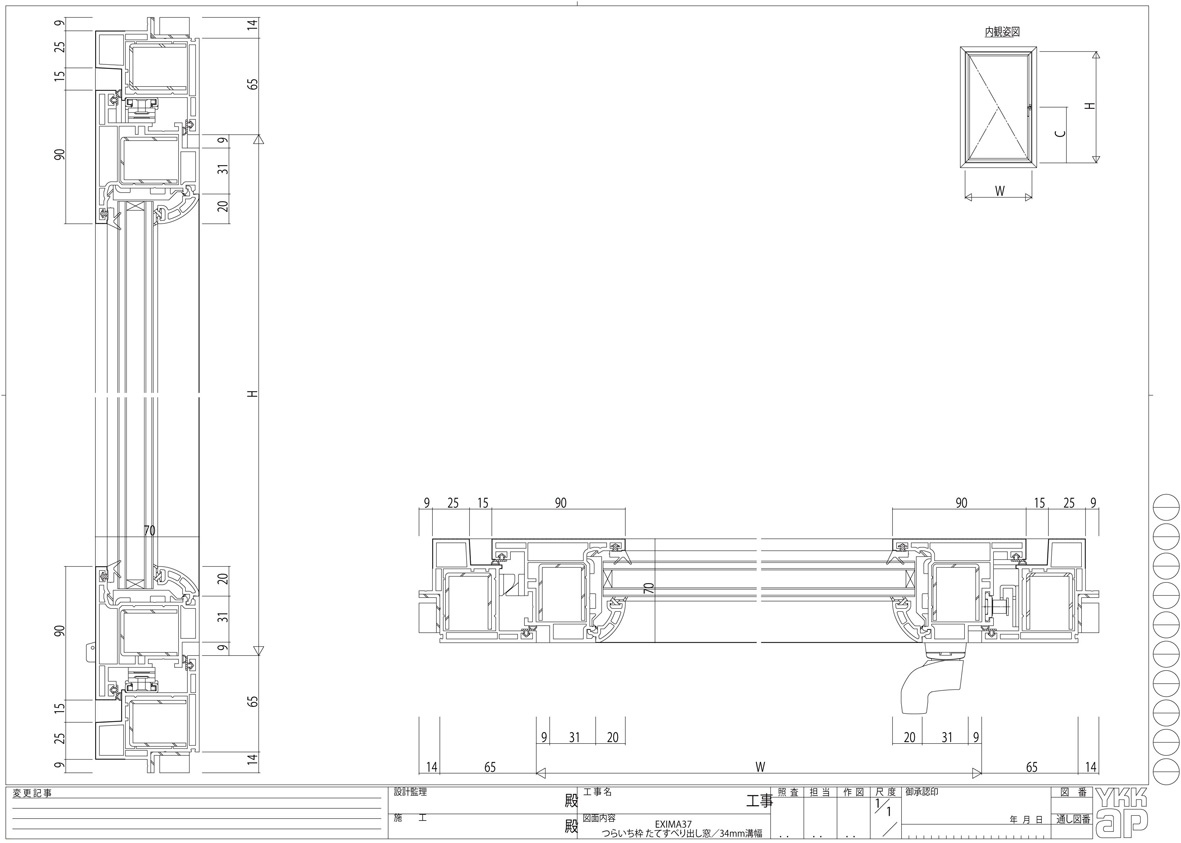
EXIMA37 つらいち枠 たてすべり出し窓 グレモンハンドル/34mm溝幅
E17213006B
詳細図
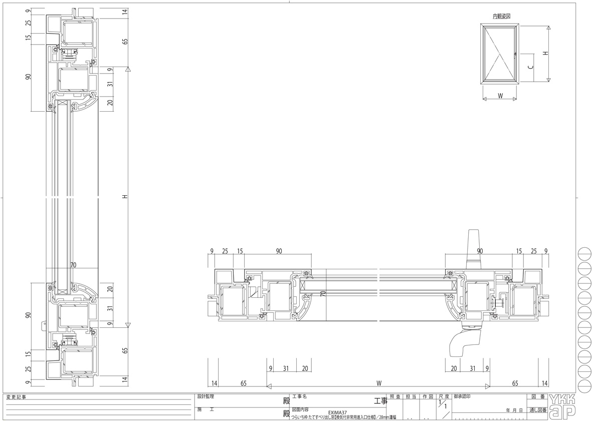
EXIMA37 つらいち枠 たてすべり出し窓【換気付非常用進入口仕様】/28mm溝幅
E17213007A
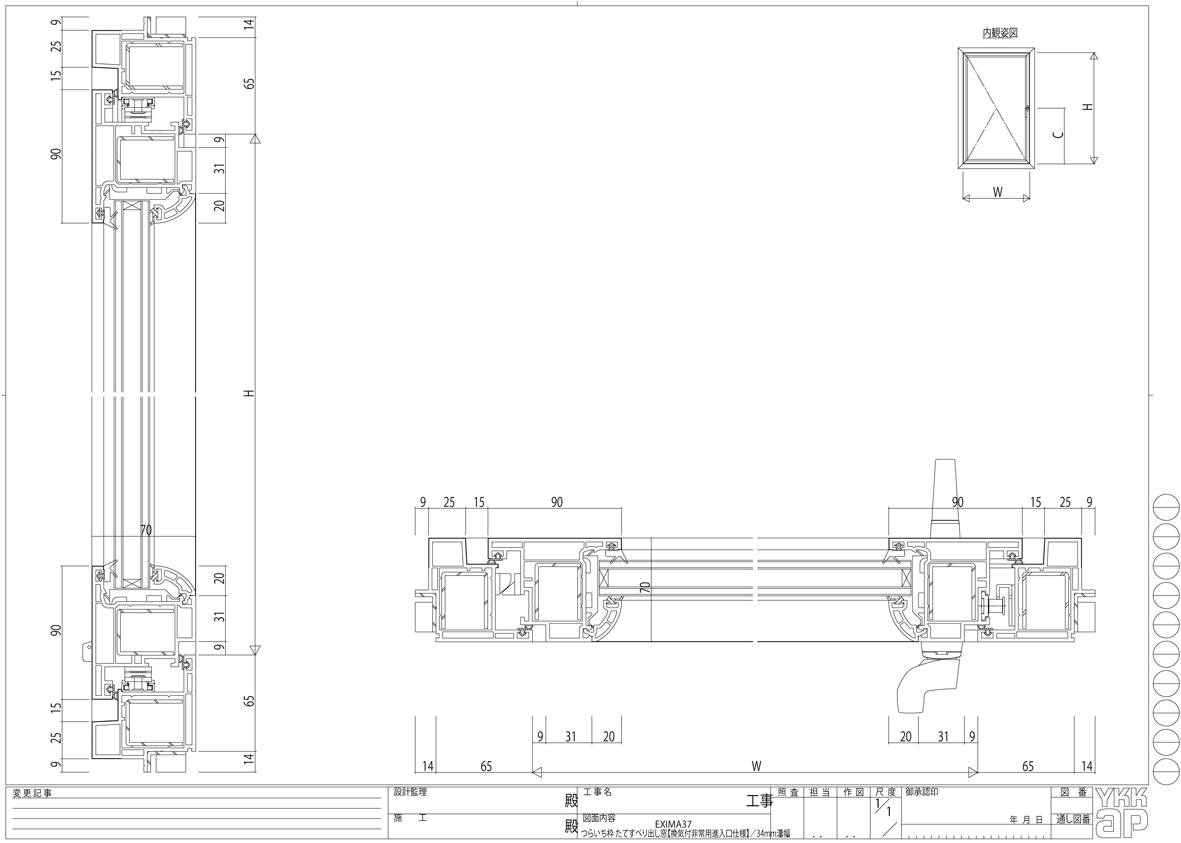
詳細図
EXIMA37 つらいち枠 たてすべり出し窓【換気付非常用進入口仕様】/34mm溝幅
E17213007B
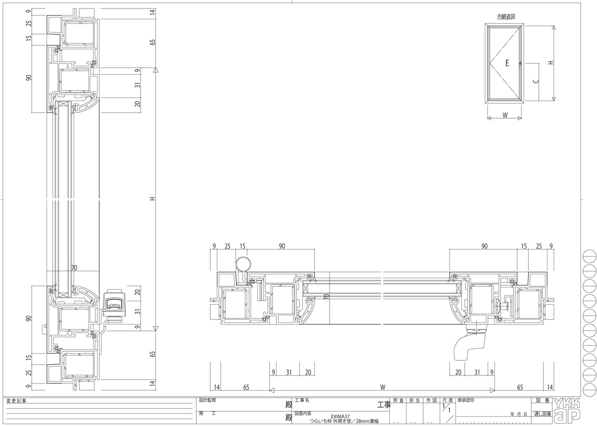
詳細図
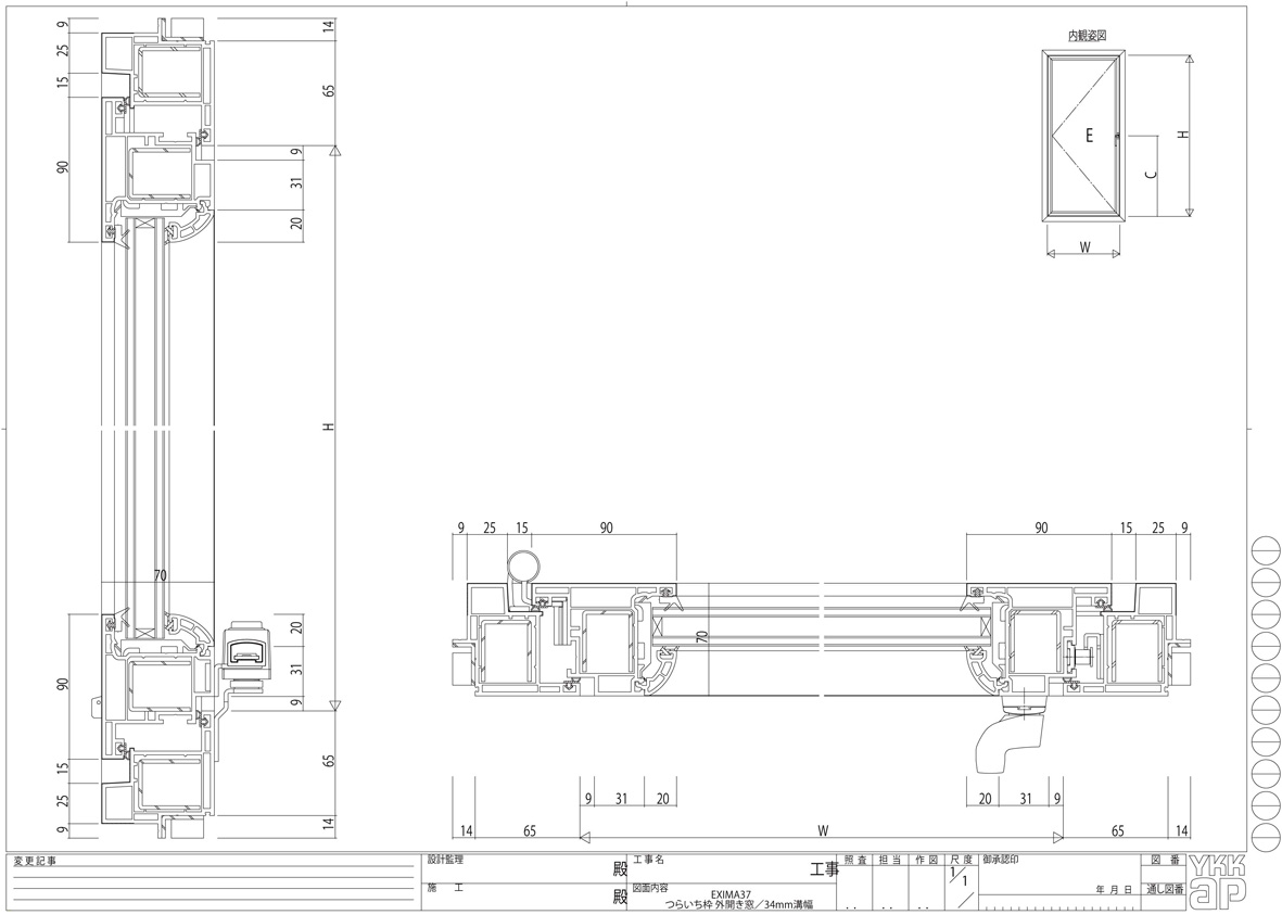
EXIMA37 つらいち枠 外開き窓/28mm溝幅
E17213008A
詳細図
EXIMA37 つらいち枠 外開き窓/34mm溝幅
E17213008B
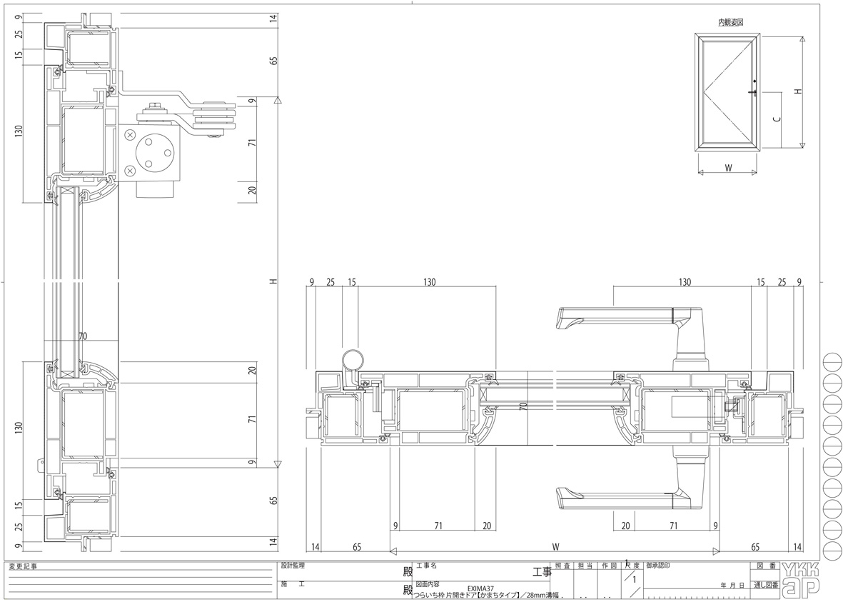
詳細図
EXIMA37 つらいち枠 片開きドア【かまちタイプ】/28mm溝幅
E17213009A
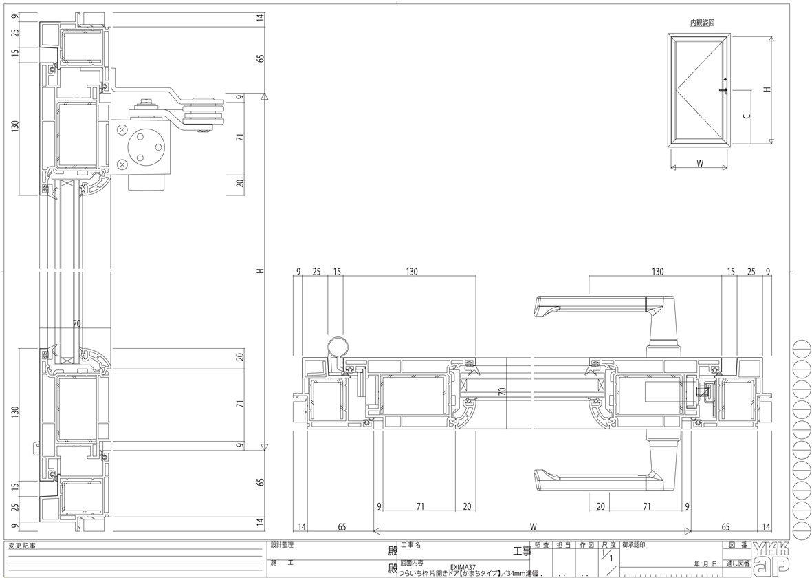
詳細図
EXIMA37 つらいち枠 片開きドア【かまちタイプ】/34mm溝幅
E17213009B
詳細図
EXIMA37・EXIMA77 枠バリエーション 引違い窓(2枚建)・片引き窓【内動】・両袖片引き窓【内動】、FIX窓、外倒し・外開き窓・たてすべり出し窓・片開きドア【かまち】 つらいち枠 アングルなし
E3777B01
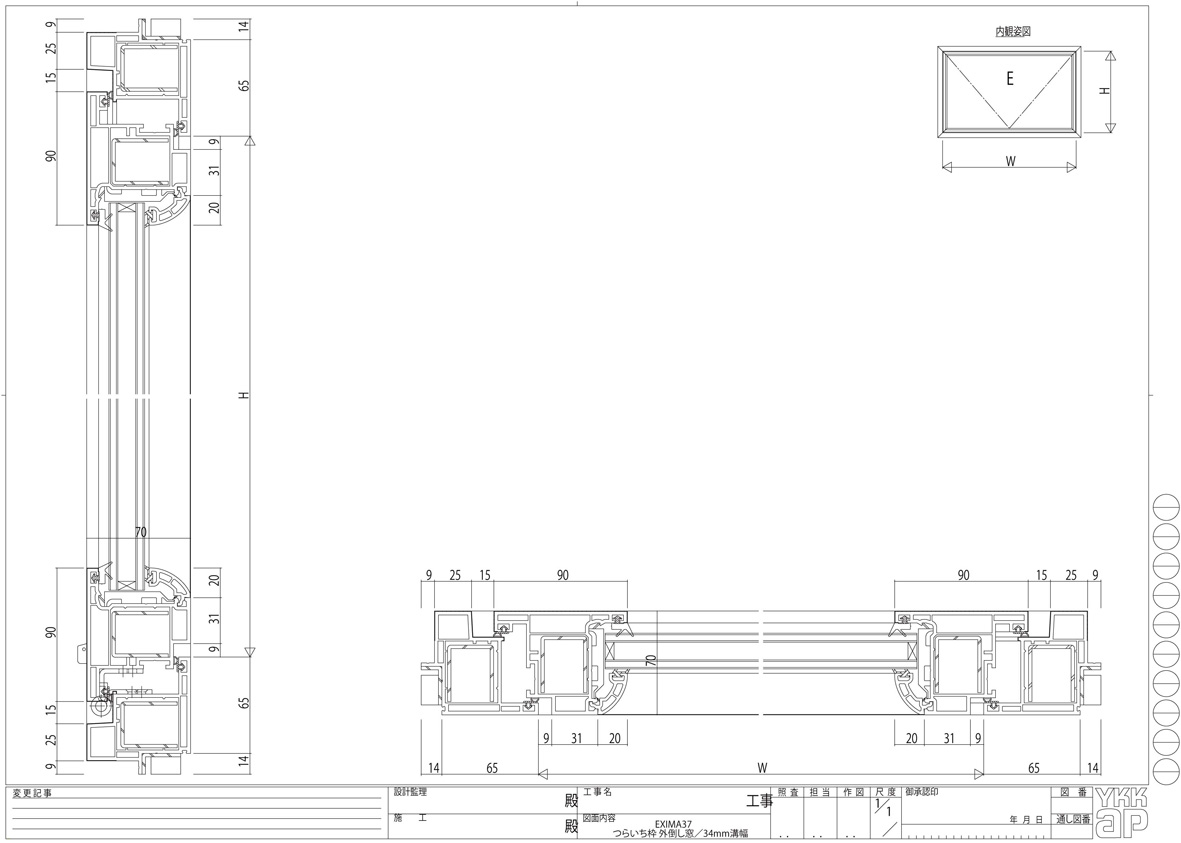
詳細図
納まり参考図 EXIMA37 つらいち納まり 外開き窓/28mm溝幅
FE37P013
詳細図
納まり参考図 EXIMA37 RC納まり たてすべり出し窓 グレモンハンドル/34mm溝幅
FE37P014
詳細図
EXIMA55 引違い窓 RC枠 Aタイプ 36mm溝幅(T-1仕様)
E24202001-A
詳細図
EXIMA55 引違い窓 RC枠 Dタイプ 36mm溝幅(T-1仕様)
E24202001-B
詳細図
EXIMA55 引違い窓 RC枠 Eタイプ 36mm溝幅(T-1仕様)
E24202002
詳細図
EXIMA55 片引き窓 RC枠 Aタイプ 36mm溝幅(T-1仕様)
E24202004-A
詳細図
EXIMA55 片引き窓 RC枠 Eタイプ 36mm溝幅(T-1仕様)
E24202004-B
詳細図
EXIMA55 FIX窓[内押縁タイプ] RC枠 38mm溝幅
E24202007-A
詳細図
EXIMA55 FIX窓[内押縁タイプ] つらいち枠 38mm溝幅
E24202007-B
詳細図
EXIMA55 FIX窓[外押縁タイプ] RC枠 38mm溝幅
E24202008-A
詳細図
EXIMA55 FIX窓[外押縁タイプ] つらいち枠 38mm溝幅
E24202008-B
詳細図
EXIMA55 突出し窓[排煙窓・隠ぺいオペレーター仕様] RC枠 38mm溝幅
E24202009-A
詳細図
EXIMA55 突出し窓[排煙窓・隠ぺいオペレーター仕様] つらいち枠 38mm溝幅
E24202009-B
詳細図
EXIMA55 たてすべり出し窓 RC枠 グレモンハンドル 38mm溝幅
E24202010-A
詳細図
EXIMA55 たてすべり出し窓 つらいち枠 グレモンハンドル 38mm溝幅
E24202010-B
詳細図
EXIMA55 たてすべり出し窓 RC枠 [換気付非常用侵入口仕様]グレモンハンドル 38mm溝幅
E24202011-A
詳細図
EXIMA55 たてすべり出し窓 つらいち枠[換気付非常用侵入口仕様] グレモンハンドル 38mm溝幅
E24202011-B
詳細図
EXIMA55 片開きドア[かまちタイプ] レバーハンドル錠仕様 RC枠 38mm溝幅
E24202012
詳細図
EXIMA55 RC枠 片開きドア【かまちタイプ】 グレモンハンドル錠仕様 38mm溝幅
E24202065
詳細図
EXIMA55 片開きドア[かまちタイプ] グレモンハンドル錠仕様 つらいち枠 38mm溝幅
E24202013
詳細図
EXIMA55 RC納まり 引違い窓 Eタイプ 36mm溝幅 外装:タイル
E24202022
詳細図
EXIMA55 ALC納まり 引違い窓 Aタイプ 36mm溝幅 外装:ALC板
E24202023-A
詳細図
EXIMA55 つらいち納まり 引違い窓 Aタイプ 36mm溝幅 外装:RC打放し
E24202023-B
詳細図
EXIMA55 RC納まり FIX窓[内押縁タイプ] 38mm溝幅 外装:タイル
E24202025-A
詳細図
EXIMA55 ALC納まり FIX窓[内押縁タイプ] 38mm溝幅 外装:ALC板
E24202025-B
詳細図
EXIMA55 RC納まり たてすべり出し窓[換気仕様] 38mm溝幅 外装:タイル
E24202027-A
詳細図
EXIMA55 つらいち納まり たてすべり出し窓[換気付非常用侵入口仕様] 38mm溝幅 外装:RC打放し
E24202027-B
詳細図
EXIMA55 つらいち納まり 突出し窓[排煙窓・隠ぺいオペレーター仕様] 38mm溝幅 外装:RC打放し
E24202029-B
詳細図
EXIMA55 RC納まり 片開きドア[かまちタイプ] 38mm溝幅 外装:タイル
E24202031
詳細図
EXIMA55 RC納まり たてすべり出し窓【換気付非常用進入口仕様】/FIX窓【内押縁タイプ】段窓 38mm溝幅 外装:タイル
E24202032
詳細図
EXIMA55/BGE55 RC納まり 引違い窓(2枚建)/FIX窓【内額縁タイプ】連窓 38mm溝幅 外装:タイル
E24202033
詳細図
EXIMA55 可動網戸 WS10E型 RC納まり 引違い窓 2枚建 Aタイプ 36mm溝幅(網戸たてかまち35mm) 300≦H≦1300
E24202034-A
詳細図
EXIMA55 可動網戸 WS10E型 RC納まり 引違い窓 2枚建 Dタイプ 36mm溝幅(網戸たてかまち45mm) 1300≦H≦2000
E24202034-B
詳細図
EXIMA55 可動網戸 WS10E型 RC納まり 引違い窓 2枚建 Eタイプ 36mm溝幅(網戸たてかまち55mm) 2000≦H≦2200
E24202036
詳細図
EXIMA55 RC納まり 開き網戸 WS21型 たてすべり出し窓
E24202037-A
詳細図
EXIMA55 RC納まり 開き網戸 WS41型 突出し窓
E24202037-B
詳細図
EXIMA55 RC納まり 収納網戸[ビューネット]ビューネットR型 たてすべり出し窓
E24202039
詳細図
EXIMA55 RC納まり 収納網戸[ビューネット]ビューネットA型 たてすべり出し窓
E24202040-A
詳細図
EXIMA55 RC納まり 収納網戸[ビューネット]ビューネットA型 片開きドア
E24202040-B