- ビジネスのお客様 HOME
- データダウンロード
- CADデータダウンロード
- 住宅用商品
- 窓・シャッター
- APW
- APW430 防火窓
- アングル付
- シャッター付引違い窓@手動・リモコンシャッター
カテゴリー検索
| 商品名 | 確認図面 |
図面データのダウンロード 全て選択する |
|
|---|---|---|---|
|
|
意匠図・建具表
在来 APW430 防火窓 (アングル付) シャッター付引違い窓 手動・リモコンシャッター 2枚建
|
||
|
|
意匠図・建具表
在来 APW430 防火窓 (アングル付) シャッター付引違い窓 手動・リモコンシャッター 4枚建
|
||
|
|
詳細図
在来 APW430 防火窓 シャッター付引違い窓 クレセント仕様 手動・リモコンシャッター アングル付 額縁納まり
|
||
|
|
詳細図
新規・更新
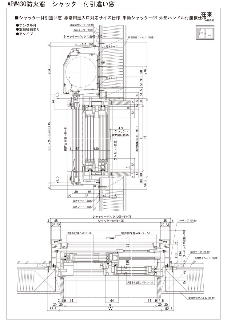
在来 APW430 防火窓 シャッター付引違い窓 非常用進入口対応サイズ仕様 手動シャッターGR 外部ハンドル付座板仕様 アングル付 額縁納まり 窓タイプ
|
||