- ビジネスのお客様 HOME
- データダウンロード
- CADデータダウンロード
- 住宅用商品
- リフォーム
- ウチリモ 内窓
カテゴリー検索
| 商品名 | 確認図面 |
図面データのダウンロード 全て選択する |
|
|---|---|---|---|
|
|
詳細図
ウチリモ 内窓 引違い窓(2枚建) 窓タイプ 大壁納まりの場合
|
||
|
|
詳細図
ウチリモ 内窓 引違い窓(2枚建) テラスタイプ ランマ通しタイプ 大壁納まりの場合
|
||
|
|
詳細図
ウチリモ 内窓 引違い窓(2枚建) 窓タイプ 枠持ち出し納まりの場合/引違い窓(2枚建) テラスタイプ ランマ通しタイプ 枠持ち出し納まりの場合
|
||
|
|
詳細図
ウチリモ 内窓 引違い窓(2枚建) 窓タイプ RC納まり 枠持ち出し納まりの場合
|
||
|
|
詳細図
ウチリモ 内窓 引違い窓(2枚建) テラスタイプ ランマ通しタイプ RC納まり 枠持ち出し納まりの場合
|
||
|
|
詳細図
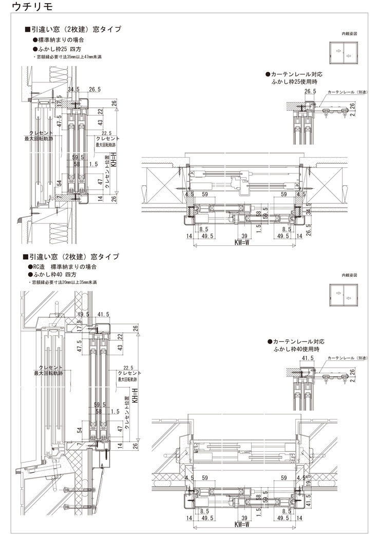
ウチリモ 内窓 引違い窓(2枚建) 窓タイプ 標準納まりの場合 ふかし枠25 四方/RC造 標準納まりの場合 ふかし枠40 四方
|
||
|
|
詳細図
ウチリモ 内窓 引違い窓(2枚建) 窓タイプ 標準納まりの場合 化粧額縁納まり/段窓無目
|
||
|
|
詳細図
ウチリモ 内窓 引違い窓 偏芯2枚建 窓タイプ/テラスタイプ
|
||
|
|
詳細図
ウチリモ 内窓 引違い窓(3枚建) 窓タイプ/テラスタイプ
|
||
|
|
詳細図
ウチリモ 内窓 引違い窓 均等4枚建/偏芯4枚建 窓タイプ/テラスタイプ
|
||
|
|
詳細図
ウチリモ 内窓 引違い窓(2枚建)窓タイプ 標準納まりの場合 ウチリモ 内窓 調整上枠 引違い窓(2枚建)窓タイプ RC造 枠持ち出し納まりの場合 ウチリモ 内窓 調整上枠
|
||
|
|
詳細図
ウチリモ 内窓 引違い窓 窓タイプ/テラスタイプ 大壁納まり
|
||
|
|
詳細図
ウチリモ 内窓 引違い窓(2枚建) 窓タイプ 標準納まりの場合 ふかし枠60 角パイプ仕様
|
||
|
|
詳細図
【2026年4月6日発売】ウチリモ 内窓 引違い窓 オプション品 和室用複層ガラス/単板ガラス用組子 窓タイプ、引違い窓 クレセント出幅 引残し
|
||
|
|
詳細図
【2026年4月6日発売】ウチリモ 内窓 浴室仕様 引違い窓 窓タイプ ユニットバス納まり(額縁下部補強材有)の場合/タイル納まりの場合
|
||
|
|
詳細図
【2026年4月30日発売】ウチリモ 内窓 FIX窓/内開き窓 大壁納まりの場合
|
||
|
|
詳細図
【2026年4月30日発売】ウチリモ 内窓 内開き窓 RC納まりの場合/開き窓テラス 大壁納まりの場合、枠持ち出し納まりの場合
|
||
|
|
詳細図
【2026年4月30日発売】ウチリモ 内窓 内開き窓 枠持ち出し納まりの場合/標準納まりの場合 ふかし枠25
|
||
|
|
詳細図
【2026年4月30日発売】ウチリモ 内窓 開き窓テラス 標準納まりの場合 ふかし枠25
|
||
|
|
詳細図
【2026年4月30日発売】ウチリモ 内窓 浴室仕様 内開き窓 ユニットバス納まりの場合/タイル納まりの場合
|
||
|
|
詳細図
【2026年4月30日発売】ウチリモ 内窓 連窓方立・段窓無目/引違い窓+FIX連窓/引違い窓+FIXコーナー連窓
|
||
|
|
詳細図
【2026年4月30日発売】ウチリモ 内窓 内開き窓+FIX連窓/引違い窓+FIX段窓/内開き窓+FIX段窓/FIX窓+FIX段窓
|
||