カテゴリー検索
商品名

キーワード検索
絞り込み すべて意匠図・建具表詳細図
商品名 確認図面 図面データのダウンロード
全て選択する
詳細図
EXIMA 31Sb 引違い窓(2枚建) Dタイプ/36mm溝幅(T-3仕様)
E26200002-A
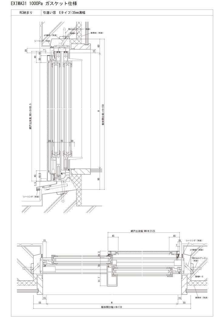
詳細図
EXIMA 31Sb 引違い窓(2枚建) Eタイプ/36mm溝幅(T-3仕様)
E26200002-B
詳細図
EXIMA 31Sb 片引き窓【外動タイプ】 Aタイプ/36mm溝幅(T-3仕様)
E26200003-A
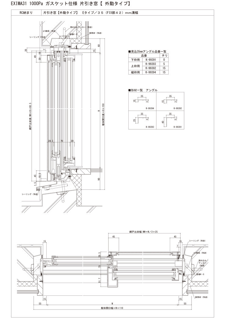
詳細図
EXIMA 31Sb 片引き窓【外動タイプ】 Eタイプ/36mm溝幅(T-3仕様)
E26200003-B
詳細図
EXIMA 31Sb 両袖片引き窓【外動タイプ】 Aタイプ/36mm溝幅(T-3仕様)
E26200004-A
詳細図
EXIMA 31Sb 両袖片引き窓【外動タイプ】 Eタイプ/36mm溝幅(T-3仕様)
E26200004-B
詳細図
EXIMA 31Sb 引分け窓【外動タイプ】 Aタイプ/36mm溝幅(T-3仕様)
E26200005-A
詳細図
EXIMA 31Sb 引分け窓【外動タイプ】 Eタイプ/36mm溝幅(T-3仕様)
E26200005-B
詳細図
EXIMA 31Sb 引違い窓(2枚建) RC納まり 引違い窓(2枚建) Eタイプ/36mm溝幅(T-3仕様)[WS10E 可動網戸付] 外装:タイル
E26200006
詳細図
EXIMA 31Sb 片引き窓【外動タイプ】 ALC納まり 片引き窓【外動タイプ】Eタイプ/36mm溝幅(T-2仕様)[WS10E 可動網戸付] 外装:ALC板
E26200007
詳細図
EXIMA 31Sb 枠バリエーション
E26200008
詳細図
EXIMA31Wb T-2 RC枠 引違い窓(2・4枚建)Aタイプ/36mm溝幅
E18224001-A
詳細図
EXIMA31Wb T-2 RC枠 引違い窓(2・4枚建)Cタイプ/36mm溝幅
E18224001-B
詳細図
EXIMA31Wb T-2 RC枠 引違い窓(2・4枚建)Dタイプ/36mm溝幅
E31WB03
詳細図
EXIMA31Wb T-2 RC枠 引違い窓(2・4枚建)Eタイプ/36mm溝幅
E18224002-B
詳細図
EXIMA31Wb T-2 RC枠 片引き窓【外動タイプ】Aタイプ/36mm溝幅
E31WB05
詳細図
EXIMA31Wb T-2 RC枠 片引き窓【外動タイプ】Eタイプ/36mm溝幅
E31WB06
詳細図
EXIMA31Wb T-2 RC枠 両袖片引き窓【外動タイプ】Aタイプ/36mm溝幅
E31WB07
詳細図
EXIMA31Wb T-2 RC枠 両袖片引き窓【外動タイプ】Eタイプ/36mm溝幅
E31WB08
詳細図
EXIMA31Wb T-2 RC枠 引分け窓【外動タイプ】Aタイプ/36mm溝幅
E18224005-A
詳細図
EXIMA31Wb T-2 RC枠 引分け窓【外動タイプ】Eタイプ/36mm溝幅
E18224005-B
詳細図
EXIMA31Wb RC枠 FIX窓【内押縁タイプ】/23・35・42mm溝幅
E31WB11
詳細図
EXIMA31Wb 段窓無目・無目 FIX窓(内押縁)/FIX窓(内押縁)
E31WB13
詳細図
EXIMA31Wb/EXIMA 31Sb 連窓方立
E31WB14
詳細図
EXIMA31Wb たて骨
E31WB15
詳細図
EXIMA31Wb 網戸 WS11型 テラスタイプ 連窓方立
E31WB18
詳細図
EXIMA31Wb 枠バリエーション 引違い窓・片引き窓・両袖片引き窓・引分け窓 RC枠・ALC枠 アングル付・なし、つらいち枠 アングルなし/FIX窓【内押縁タイプ】 RC枠・ALC枠 アングル付・なし、つらいち枠 アングルなし
E31WB12
詳細図
納まり参考図 EXIMA31Wb RC納まり T-2 引違い窓(2枚建)Eタイプ/36mm溝幅[可動網戸 WS10E型]外装:タイル
E18224007
詳細図
納まり参考図 EXIMA31Wb ALC納まり T-2 片引き窓【外動タイプ】 Eタイプ/36mm溝幅[WS10E 可動網戸付] 外装:ALC板
E18224008
詳細図
納まり参考図 EXIMA31Wb ALC納まり T-2 引違い窓(2枚建) 連窓Eタイプ/36mm溝幅[WS11型 テラスタイプ 可動網戸付(直床納まり)] 外装:ALC板
E31WB17
詳細図
納まり参考図 EXIMA31Wb RC納まり T-2 引違い窓(2枚建)Aタイプ/36mm溝幅[WS11型 可動網戸付(網戸たてかまち45mm)]外装:タイル
E31WB19
詳細図
納まり参考図 EXIMA31Wb ALC納まり T-2 引違い窓(2枚建)Eタイプ/36mm溝幅[WS11型 テラスタイプ 可動網戸付(二重床納まり)]外装:ALC板
E19224002
詳細図
納まり参考図 EXIMA31Wb ALC納まり T-2 引違い窓(2枚建)Eタイプ/36mm溝幅[WS11型 テラスタイプ 可動網戸付(直床納まり)]外装:ALC板
E19224003
詳細図
EXIMA31Wb [沖縄向け] RC枠 引違い窓(2・4枚建) Aタイプ/23mm溝幅(T-2仕様)
E20242001-A
詳細図
EXIMA31Wb [沖縄向け] RC枠 引違い窓(2・4枚建) Cタイプ/23mm溝幅(T-2仕様)
E20242001-B
詳細図
EXIMA31Wb [沖縄向け] RC枠 引違い窓(2枚建) Dタイプ/23mm溝幅(T-2仕様)
E20242002-A
詳細図
EXIMA31Wb [沖縄向け] RC枠 引違い窓(2・4枚建) Eタイプ/23mm溝幅(T-2仕様)
E20242002-B
詳細図
EXIMA31Wb [沖縄向け] RC枠 片引き窓【外動タイプ】Aタイプ/23mm溝幅(T-2仕様)
E20242003-A
詳細図
EXIMA31Wb [沖縄向け] RC枠 片引き窓【外動タイプ】Cタイプ/23mm溝幅(T-2仕様)
E20242003-B
詳細図
EXIMA31Wb [沖縄向け] RC枠 両袖片引き窓【外動タイプ】Cタイプ/23mm溝幅(T-2仕様)
E20242004-A
詳細図
EXIMA31Wb [沖縄向け] RC枠 両袖片引き窓【外動タイプ】Eタイプ/23mm溝幅(T-2仕様)
E20242004-B
詳細図
EXIMA31Wb [沖縄向け] RC枠 引分け窓【外動タイプ】Aタイプ/23mm溝幅(T-2仕様)
E20242005-A
詳細図
EXIMA31Wb [沖縄向け] RC枠 引分け窓【外動タイプ】Cタイプ/23mm溝幅(T-2仕様)
E20242005-B
詳細図
EXIMA31Wb [沖縄向け] RC枠 引分け窓【外動タイプ】Eタイプ/23mm溝幅(T-2仕様)
E20242006
詳細図
EXIMA31Wb [沖縄向け] RC枠 FIX窓【内押縁タイプ】/23mm溝幅
E20242007
詳細図
納まり参考図 EXIMA31Wb [沖縄向け] RC納まり 引違い窓(2枚建) Eタイプ/23mm溝幅(T-2仕様) [WS10E 可動網戸付] 外装:タイル
E20242008
詳細図
納まり参考図 EXIMA31Wb [沖縄向け] ALC納まり 片引き窓【外動タイプ】 Cタイプ/23mm溝幅(T-2仕様) [WS10E 可動網戸付] 外装:ALC板
E20242009
詳細図
納まり参考図 EXIMA31Wb [沖縄向け] RC納まり 引違い窓(2枚建) Aタイプ/23mm溝幅(T-2仕様) [WS11型 可動網戸付(網戸たてかまち45mm)] 外装:タイル
E20242010
詳細図
納まり参考図 EXIMA31Wb [沖縄向け] ALC納まり 引違い窓(2枚建) Eタイプ/23mm溝幅(T-2仕様) [WS11型 テラスタイプ 可動網戸付(二重床納まり)] 外装:ALC板
E20242011
詳細図
納まり参考図 EXIMA31Wb [沖縄向け] ALC納まり 引違い窓(2枚建) Eタイプ/23mm溝幅(T-2仕様) [WS11型 テラスタイプ 可動網戸付(直床納まり)] 外装:ALC板
E20242012