- ビジネスのお客様 HOME
- データダウンロード
- CADデータダウンロード
- 住宅用商品
- リフォーム
- 窓リフォーム
- 外窓交換
- マドリモ 居室仕様 北海道
| 商品名 | 確認図面 |
図面データのダウンロード 全て選択する |
|
|---|---|---|---|
|
|
詳細図
新規・更新
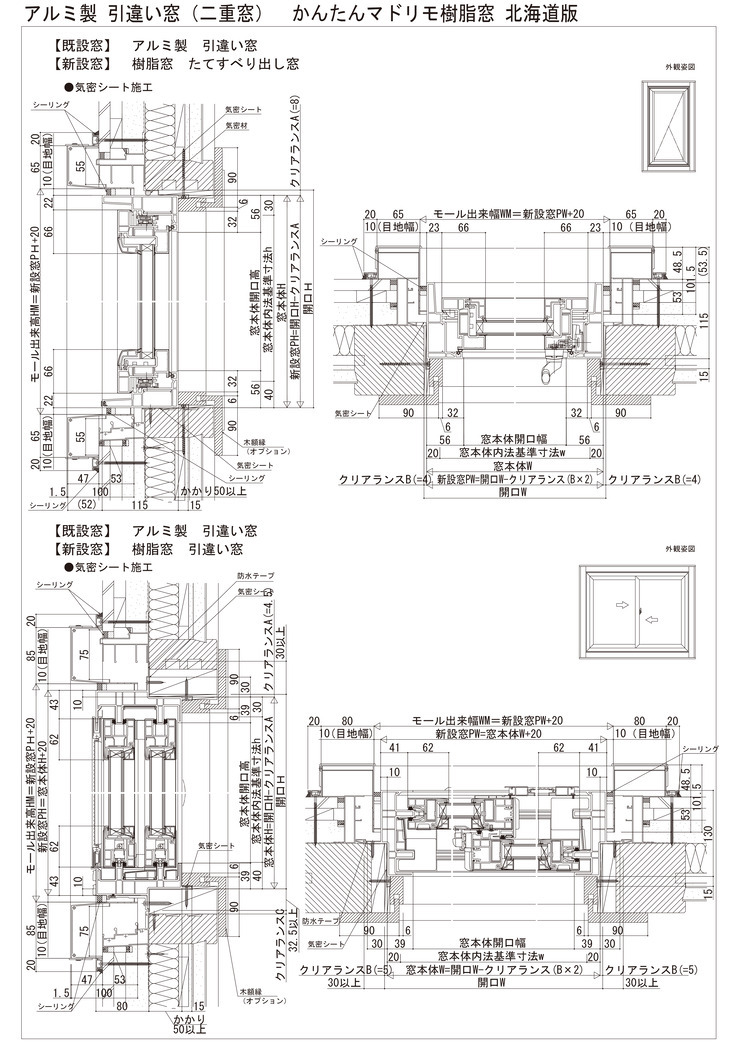
【2026年4月6日発売】かんたんマドリモ 樹脂窓 北海道 【既設窓】 アルミ製 引違い窓 【新設窓】 樹脂窓 たてすべり出し窓/引違い窓
|
||
|
|
詳細図
【2026年4月5日販売終了】かんたんマドリモ 樹脂窓 北海道 【既設窓】 アルミ製 引違い窓(外付型) 【新設窓】 樹脂窓 たてすべり出し窓/引違い窓
|
||
|
|
詳細図
かんたんマドリモ 樹脂窓 北海道 【既設窓】 アルミ製 引違い窓(外付型) 【新設窓】 トリプルガラス樹脂窓 たてすべり出し窓
|
||
|
|
詳細図
かんたんマドリモ 樹脂窓 北海道 【既設窓】 樹脂製窓 FIX窓【新設窓】トリプルガラス樹脂窓 引違い窓/【既設窓】樹脂製窓 引違い窓【新設窓】トリプルガラス樹脂窓 引違いテラス戸
|
||