カテゴリー検索
窓種

キーワード検索
絞り込み すべて意匠図・建具表詳細図
商品名 確認図面 図面データのダウンロード
全て選択する
詳細図
ドアリモ 玄関ドア D30 防火ドア 片開き・親子枠/既設ドア:内付型・半外付型
E25162012
詳細図
ドアリモ 玄関ドア D30 防火ドア 片開き・親子枠/既設ドア:内付型・半外付型
E25162013
詳細図
在来 ドアリモ 勝手口ドア 樹脂複合枠 既設ドア:内付型(勝手口ドア2KD) 新設ドア:樹脂複合枠 通風(横格子)/フロア納まり 外額縁:50(四方) 内額縁:樹脂額縁(見切材付)
E23152001
詳細図
在来 ドアリモ 勝手口ドア 樹脂複合枠 既設ドア:半外付型(勝手口ドア2KD) 新設ドア:樹脂複合枠 通風(横格子)/フロア納まり 外額縁:50(四方) 内額縁:樹脂額縁(見切材付)
E23152002
詳細図
在来 ドアリモ 勝手口ドア 樹脂複合枠 既設ドア:内付型(勝手口ドア2KD) 新設ドア:樹脂複合枠 通風(横格子)/土間納まり 外額縁:50(三方) 内額縁:樹脂額縁(見切材付)
E23152003
詳細図
在来 ドアリモ 勝手口ドア 樹脂複合枠 既設ドア:半外付型(勝手口ドア2KD) 新設ドア:樹脂複合枠 通風(横格子)/土間納まり 外額縁:50(三方) 内額縁:樹脂額縁(見切材付)
E23152004
詳細図
在来 ドアリモ 勝手口ドア 樹脂複合枠 既設ドア:半外付型(勝手口ドア2KD) 新設ドア:樹脂複合枠 通風(横格子)/フロア納まり 外額縁:50(四方) 内額縁:枠わくサービス 三方ワイドケーシング 90見付
E23152005
詳細図
在来 ドアリモ 勝手口ドア 樹脂複合枠 既設ドア:半外付型(勝手口ドア2KD) 新設ドア:樹脂複合枠 通風(横格子)/土間納まり 外額縁:50(三方) 内額縁:枠わくサービス 三方ワイドケーシング 90見付
E23152006
詳細図
在来 ドアリモ 勝手口ドア 樹脂複合枠 既設ドア:半外付型(勝手口ドア2KD) 新設ドア:樹脂複合枠 通風(横格子)/土間納まり/下枠幅木納まり 外額縁:50(三方) 内額縁:樹脂額縁(見切材無)
E23152007
詳細図
在来 ドアリモ 勝手口ドア アルミ枠 既設ドア:内付型(勝手口ドア2KD) 新設ドア:アルミ枠 通風(横格子)/土間納まり 外額縁:21(三方) 内額縁:40
E23152008
詳細図
在来 ドアリモ 勝手口ドア アルミ枠 既設ドア:半外付型(勝手口ドア2KD) 新設ドア:アルミ枠 通風(横格子)/土間納まり 外額縁:50(三方) 内額縁:40
E23152009
詳細図
在来 ドアリモ 勝手口ドア アルミ枠 既設ドア:内付型(勝手口ドア2KD) 新設ドア:アルミ枠 ランマ付 通風(横格子)/土間納まり 外額縁:21(三方) 内額縁:40
E23152010
詳細図
在来 ドアリモ 勝手口ドア アルミ枠 既設ドア:半外付型(勝手口ドア2KD) 新設ドア:アルミ枠 ランマ付 通風(横格子)/土間納まり 外額縁:50(三方) 内額縁:40
E23152011
詳細図
在来 ドアリモ 勝手口ドア既設ドア:内付型(勝手口ドア2KD) 新設ドア:樹脂複合枠 通風(横格子)/フロア納まり 外額縁:50(四方) 内額縁:樹脂額縁(見切材付) 納まり無
E23152060
詳細図
在来 ドアリモ 勝手口ドア既設ドア:半外付型(勝手口ドア2KD) 新設ドア:樹脂複合枠 通風(横格子)/フロア納まり 外額縁:50(四方) 内額縁:樹脂額縁(見切材付) 納まり無
E23152061
詳細図
在来 ドアリモ 勝手口ドア既設ドア:内付型(勝手口ドア2KD) 新設ドア:樹脂複合枠 通風(横格子)/土間納まり 外額縁:50(三方) 内額縁:樹脂額縁(見切材付) 納まり無
E23152062
詳細図
在来 ドアリモ 勝手口ドア既設ドア:半外付型(勝手口ドア2KD) 新設ドア:樹脂複合枠 通風(横格子)/土間納まり 外額縁:50(三方) 内額縁:樹脂額縁(見切材付) 納まり無
E23152063
詳細図
在来 ドアリモ 勝手口ドア既設ドア:半外付型(勝手口ドア2KD) 新設ドア:樹脂複合枠 通風(横格子)/フロア納まり 外額縁:50(四方) 内額縁:枠わくサービス 三方ワイドケーシング90見付 納まり無
E23152064
詳細図
在来 ドアリモ 勝手口ドア既設ドア:半外付型(勝手口ドア2KD) 新設ドア:樹脂複合枠 通風(横格子)/土間納まり 外額縁:50(三方) 内額縁:枠わくサービス 三方ワイドケーシング90見付 納まり無
E23152065
詳細図
在来 ドアリモ 勝手口ドア既設ドア:半外付型(勝手口ドア2KD) 新設ドア:樹脂複合枠 通風(横格子)/土間納まり/下枠幅木納まり 外額縁:50(三方) 内額縁:樹脂額縁(見切材無) 納まり無
E23152066
詳細図
在来 ドアリモ 勝手口ドア既設ドア:内付型(勝手口ドア2KD) 新設ドア:アルミ枠 ランマ無 通風(横格子)/土間納まり 外額縁:21(三方) 内額縁:40 納まり無
E23152067
詳細図
在来 ドアリモ 勝手口ドア既設ドア:半外付型(勝手口ドア2KD) 新設ドア:アルミ枠 ランマ無 通風(横格子)/土間納まり 外額縁:50(三方) 内額縁:40 納まり無
E23152068
詳細図
在来 ドアリモ 勝手口ドア既設ドア:内付型(勝手口ドア2KD) 新設ドア:アルミ枠 ランマ付 通風(横格子)/土間納まり 外額縁:21(三方) 内額縁:40 納まり無
E23152069
詳細図
在来 ドアリモ 勝手口ドア既設ドア:半外付型(勝手口ドア2KD) 新設ドア:アルミ枠 ランマ付 通風(横格子)/土間納まり 外額縁:50(三方) 内額縁:40 納まり無
E23152070
詳細図
ドアリモ勝手口ドア アルミ枠/樹脂複合枠 額縁一覧 外額縁(アルミ枠)21、50、80 上部・下部・縦部納まり付形材図
E23152075
詳細図
ドアリモ勝手口ドア アルミ枠/樹脂複合枠 額縁一覧 外額縁(樹脂複合枠)21、50、80 上部・下部・縦部納まり付形材図
E23152076
詳細図
ドアリモ勝手口ドア アルミ枠/樹脂複合枠 額縁一覧 内額縁40、100/樹脂額縁 上部・縦部納まり付形材図
E23152077
詳細図
ドアリモ勝手口ドア アルミ枠/樹脂複合枠 形材図一覧
E23008149
詳細図
在来 ドアリモ 室内折戸 上下アタッチメント枠
E19111001
詳細図
在来 ドアリモ 室内折戸 四方アタッチメント枠
E19111002
詳細図
ドアリモ 浴室ドア 折戸 アタッチメント枠
E20119001
詳細図
ドアリモ 浴室ドア 折戸 内付枠(カバー枠)(アングル無) カバー工法
E23119002
詳細図
ドアリモ 浴室ドア 折戸 内付枠(カバー枠)(下枠アングル付) カバー工法/内付枠(カバー枠)(アングル無)
E20119003
詳細図
ドアリモ 浴室ドア 折戸 内付枠(カバー枠)(下枠アングル付) 新築・枠ごと交換
E23119012
詳細図
ドアリモ 浴室ドア 折戸 アタッチメント枠 四方枠 ガスケット仕様/内付枠(カバー枠)(下枠アングル無) ガスケット仕様 カバー工法
E23119008
詳細図
ドアリモ 浴室ドア 折戸 内付枠(カバー枠)(下枠アングル付) ガスケット仕様 カバー工法
E20119009
詳細図
ドアリモ 浴室ドア ドア 内付枠(カバー枠) 樹脂板タイプ カバー工法
E23119004
詳細図
ドアリモ 浴室ドア ドア 内付枠(カバー枠) 樹脂板タイプ カバー工法/新築・枠ごと交換
E23119005
詳細図
ドアリモ 浴室ドア ドア 半外付枠 ガラスタイプ 親子ドア・片開きドア 新築・枠ごと交換
E20119006
詳細図
ドアリモ 浴室ドア 引戸 半外付枠 3枚片引き戸・3枚両引き戸 新築・枠ごと交換
E23119011
詳細図
ドアリモ 浴室ドア 引戸 半外付枠 片引き戸 新築・枠ごと交換
E23119010
詳細図
ウチリモ 内窓 引違い窓(2枚建) 窓タイプ 大壁納まりの場合
E25067001
詳細図
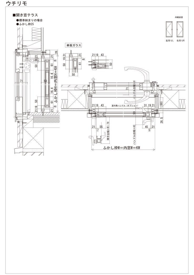
ウチリモ 内窓 引違い窓(2枚建) テラスタイプ 大壁納まりの場合
E25067002
詳細図
ウチリモ 内窓 引違い窓(2枚建) 窓タイプ/テラスタイプ 枠持ち出し納まりの場合
E25067003
詳細図
ウチリモ 内窓 引違い窓(2枚建) 窓タイプ RC納まり 枠持ち出し納まりの場合
E25067004
詳細図
ウチリモ 内窓 引違い窓(2枚建) テラスタイプ RC納まり 枠持ち出し納まりの場合
E25067005
詳細図
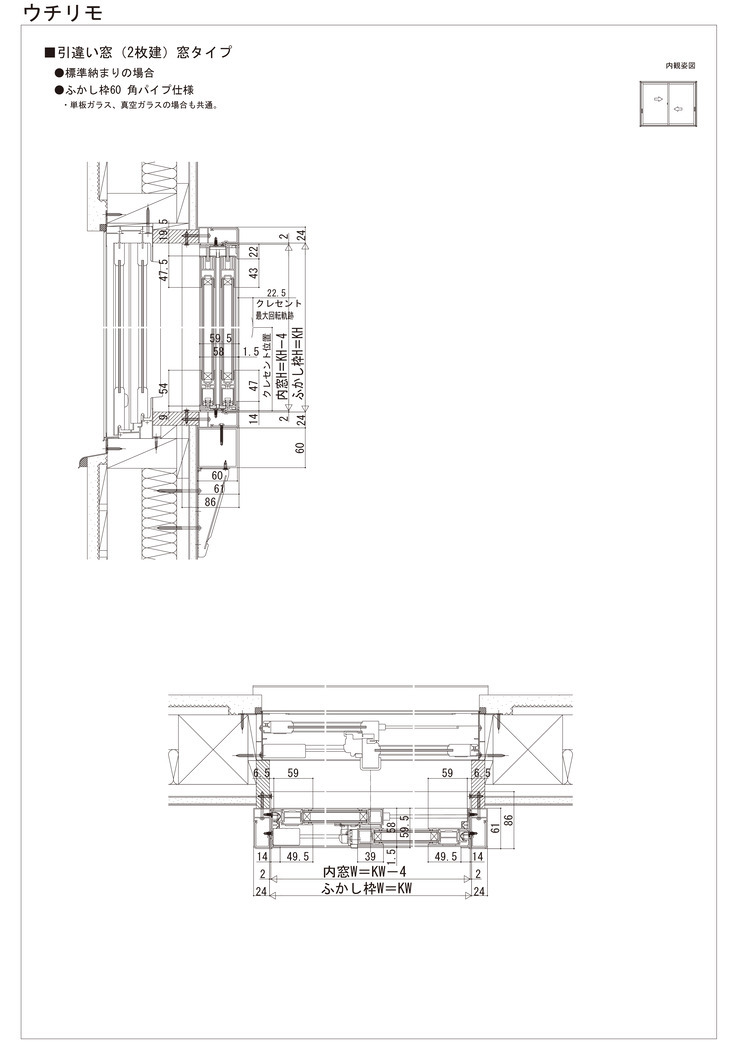
ウチリモ 内窓 引違い窓(2枚建) 窓タイプ 標準納まりの場合
E25067006
詳細図
ウチリモ 内窓 引違い窓(2枚建) 窓タイプ 標準納まりの場合 ケショウ額縁納まり/段窓無目
E25067007
詳細図
ウチリモ 内窓 引違い窓 偏芯2枚建 窓タイプ/テラスタイプ
E25067008
詳細図
ウチリモ 内窓 引違い窓 3枚建 窓タイプ/テラスタイプ
E25067009