カテゴリー検索
  
  
          
            窓種
        
    - ビル用ウインドウ・ドア
- 非溶接工法
- 防火商品
- 防火商品(エントランス)
- アルミ防火内窓
- カーテンウォール
- スチール商品
- 改装商品
- エントランス商品(ビルエントランス・フロント)
- ビル関連商品
- EXIMA31 イージーオーダー組立品
- 白紙建具表
| 商品名 | 確認図面 | 図面データのダウンロード 全て選択する | |
|---|---|---|---|
|   | 
              詳細図
              
            EXIMA31 鉄骨枠 半外付型 FIX窓【内押縁タイプ】35mm溝幅 |  | |
|   | 
              詳細図
              
            EXIMA31 鉄骨枠 半外付型 FIX窓【内押縁タイプ】42mm溝幅 |  | |
|   | 
              詳細図
              
            EXIMA31 鉄骨枠 半外付型 FIX窓【外押縁タイプ】18mm溝幅 |  | |
|   | 
              詳細図
              
            EXIMA31 鉄骨枠 半外付型 FIX窓【外押縁タイプ】23mm溝幅 |  | |
|   | 
              詳細図
              
            EXIMA31 鉄骨枠 半外付型 FIX窓【外押縁タイプ】30mm溝幅 |  | |
|   | 
              詳細図
              
            EXIMA31 鉄骨枠 半外付型 FIX窓【外押縁タイプ】35mm溝幅 |  | |
|   | 
              詳細図
              
            EXIMA31 鉄骨枠 外付型 FIX窓【内押縁タイプ】18mm溝幅 |  | |
|   | 
              詳細図
              
            EXIMA31 鉄骨枠 外付型 FIX窓【内押縁タイプ】23mm溝幅 |  | |
|   | 
              詳細図
              
            EXIMA31 鉄骨枠 外付型 FIX窓【内押縁タイプ】30mm溝幅 |  | |
|   | 
              詳細図
              
            EXIMA31 鉄骨枠 外付型 FIX窓【内押縁タイプ】35mm溝幅 |  | |
|   | 
              詳細図
              
            EXIMA31 鉄骨枠 外付型 FIX窓【内押縁タイプ】42mm溝幅 |  | |
|   | 
              詳細図
              
            EXIMA31 鉄骨枠 外付型 FIX窓【外押縁タイプ】18mm溝幅 |  | |
|   | 
              詳細図
              
            EXIMA31 鉄骨枠 外付型 FIX窓【外押縁タイプ】23mm溝幅 |  | |
|   | 
              詳細図
              
            EXIMA31 鉄骨枠 外付型 FIX窓【外押縁タイプ】30mm溝幅 |  | |
|   | 
              詳細図
              
            EXIMA31 鉄骨枠 外付型 FIX窓【外押縁タイプ】35mm溝幅 |  | |
|   | 
              詳細図
              
            EXIMA31Wb RC枠 FIX窓【内押縁タイプ】/23・35・42mm溝幅 |  | |
|   | 
              詳細図
              
            EXIMA31Wb [沖縄向け] RC枠 FIX窓【内押縁タイプ】/23mm溝幅 |  | |
|   | 
              詳細図
              
            EXIMA51 RC枠 FIX窓【内押縁タイプ】18mm溝幅 |  | |
|   | 
              詳細図
              
            EXIMA51 RC枠 FIX窓【内押縁タイプ】23mm溝幅 |  | |
|   | 
              詳細図
              
            EXIMA51 RC枠 FIX窓【内押縁タイプ】30mm溝幅 |  | |
|   | 
              詳細図
              
            EXIMA51 RC枠 FIX窓【内押縁タイプ】35mm溝幅 |  | |
|   | 
              詳細図
              
            EXIMA51 RC枠 FIX窓【内押縁タイプ】42mm溝幅 |  | |
|   | 
              詳細図
              
            EXIMA32 RC枠 FIX窓【内押縁タイプ】30mm溝幅 |  | |
|   | 
              詳細図
              
            EXIMA32 RC枠 FIX窓【内押縁タイプ】35mm溝幅 |  | |
|   | 
              詳細図
              
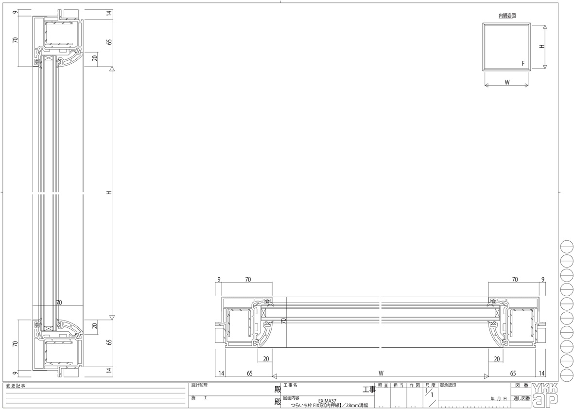
            EXIMA37 つらいち枠 FIX窓【内押縁】/28mm溝幅 |  | |
|   | 
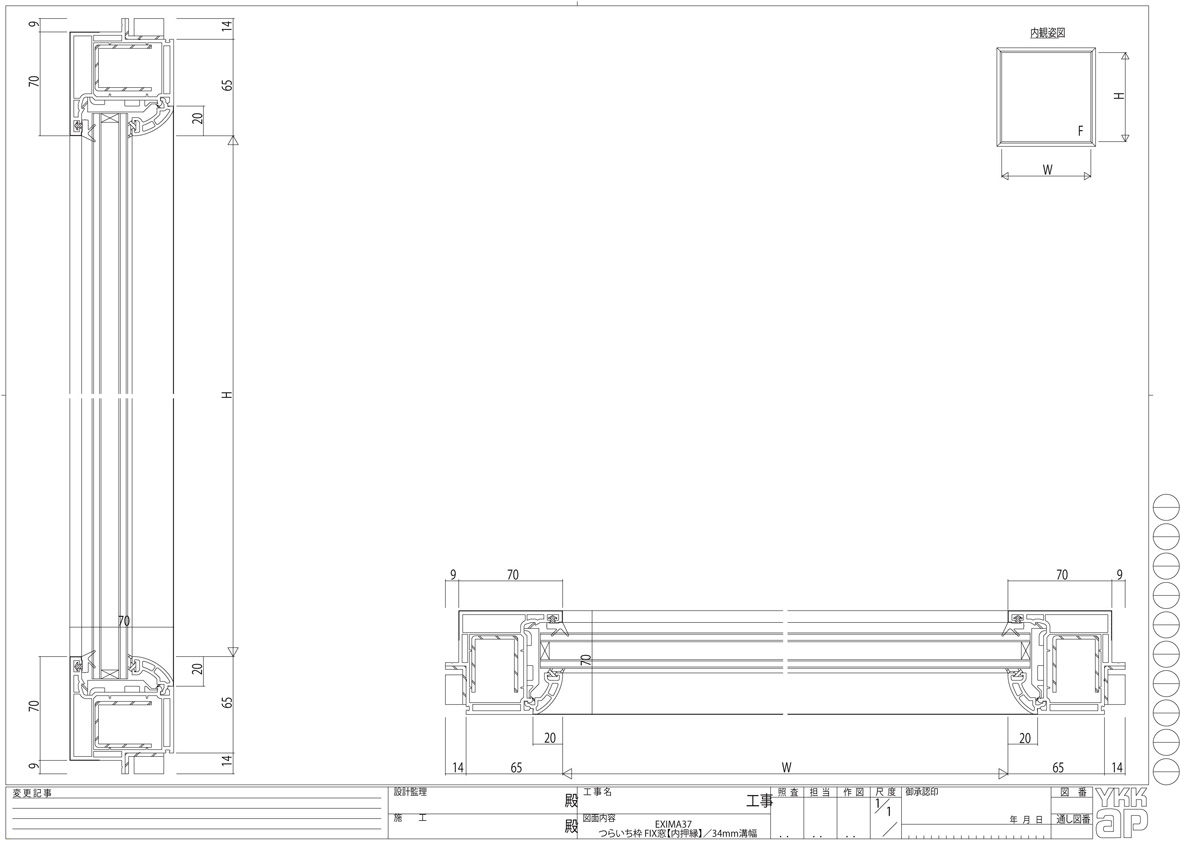
              詳細図
              
            EXIMA37 つらいち枠 FIX窓【内押縁】/34mm溝幅 |  | |
|   | 
              詳細図
              
            EXIMA55 FIX窓[内押縁タイプ] RC枠 38mm溝幅 |  | |
|   | 
              詳細図
              
            EXIMA55 FIX窓[内押縁タイプ] つらいち枠 38mm溝幅 |  | |
|   | 
              詳細図
              
            EXIMA55 FIX窓[外押縁タイプ] RC枠 38mm溝幅 |  | |
|   | 
              詳細図
              
            EXIMA55 FIX窓[外押縁タイプ] つらいち枠 38mm溝幅 |  | |
|   | 
              詳細図
              
            SYSTEMA31 つらいち枠 FIX窓 |  | |
|   | 
              詳細図
              
            SYSTEMA31 つらいち枠 FIX窓【FIX専用枠】 |  | |
|   | 
              詳細図
              
            SYSTEMA31 つらいち枠 FIX窓 |  | |
|   | 
              詳細図
              
            SYSTEMA31 つらいち枠 開閉換気口付FIX窓 |  | |
|   | 
              詳細図
              
            SYSTEMA31 RC枠 FIX窓 |  | |
|   | 
              詳細図
              
            SYSTEMA31 RC枠 開閉換気口付FIX窓 |  | |
|   | 
              詳細図
              
            SYSTEMA521 つらいち枠 FIX窓 23mm溝幅 |  | |
|   | 
              詳細図
              
            SYSTEMA521 つらいち枠 FIX窓 33mm溝幅 |  | |
|   | 
              詳細図
              
            SYSTEMA521 つらいち枠 FIX窓 38mm溝幅 |  | |
|   | 
              詳細図
              
            SYSTEMA521 つらいち枠 FIX窓 48mm溝幅 |  | |
|   | 
              詳細図
              
            SYSTEMA720 FIX窓 セットバック枠 23mm溝幅 |  | |
|   | 
              詳細図
              
            SYSTEMA720 FIX窓 セットバック枠 33mm溝幅 |  | |
|   | 
              詳細図
              
            SYSTEMA720 FIX窓 セットバック枠 38mm溝幅 |  | |
|   | 
              詳細図
              
            SYSTEMA720 FIX窓 セットバック枠 48mm溝幅 |  | |
|   | 
              詳細図
              
            SYSTEMA710 セットバック枠 FIX窓 |  | |
|   | 
              詳細図
              
            SYSTEMA710 セットバック枠 開閉換気口付FIX窓 |  | |
|   | 
              詳細図
              
            エピソードNEO-LB RC枠 FIX窓/30mm溝幅 |  | |
|   | 
              詳細図
              
            エピソードNEO-LB ALC枠 FIX窓/30mm溝幅 |  | |
|   | 
              詳細図
              
            エピソードNEO-LB RC枠 FIX窓 30mm溝幅 S-5 |  | |
|   | 
              詳細図
              
            エピソードNEO-LB ALC枠 FIX窓 30mm溝幅 |  | |