カテゴリー検索
| 商品名 | 確認図面 |
図面データのダウンロード 全て選択する |
|
|---|---|---|---|
|
|
詳細図
【2026年4月末販売終了】ウチリモ プラマードU 製品図 連窓・段窓 製品図
|
||
|
|
詳細図
【2026年4月末販売終了】ウチリモ プラマードU 製品図 開き窓+FIX連窓/開き窓+FIXコーナー連窓/引違い窓+FIX段窓/内開き窓+FIX段窓/FIX窓+FIX段窓
|
||
|
|
詳細図
【2026年3月末販売終了】マドリモ 内窓 プラマードU 北海道向け 引違い窓 窓タイプ チリ出し納まり/引違い窓 テラスタイプ、ランマ通しタイプ チリ出し納まり/FIX窓 溶着仕様
|
||
|
|
詳細図
【2026年3月末販売終了】マドリモ 内窓 プラマードU 北海道向け 内開き窓 溶着仕様/開き窓テラス
|
||
|
|
詳細図
Lite U 一般仕様 引違い窓 窓タイプ/浴室仕様 引違い窓 窓タイプ 在来
|
||
|
|
詳細図
マドリモ 戸建用 ラフォレスタ 枠わくサービス 四方ワイドケーシング90見付 新設窓:トリプルガラス樹脂窓での納まり例
|
||
|
|
詳細図
マドリモ 戸建用 ラフォレスタ 枠わくサービス 四方返し付ケーシング90見付 新設窓:樹脂窓 ハイブリッド専用枠での納まり例
|
||
|
|
詳細図
マドリモ 戸建用 ラフォレスタ 枠わくサービス 三方返し付ケーシング90見付+テラス用下枠 新設窓:樹脂窓 ジョイント枠での納まり例
|
||
|
|
詳細図
マドリモ 戸建用 ラフォレスタ 枠わくサービス 四方ワイドケーシング90見付/テラス用下枠 新設窓:アルミ樹脂複合窓での納まり例
|
||
|
|
詳細図
マドリモ 戸建用 樹脂額縁 新設窓:樹脂窓 ハイブリッド専用枠での納まり例(樹脂額縁 見込大 見切材付)
|
||
|
|
詳細図
マドリモ 戸建用 樹脂額縁 新設窓:樹脂窓 ジョイント枠での納まり例(樹脂額縁 見込大 見切材無)
|
||
|
|
詳細図
マドリモ 戸建用 樹脂額縁 新設窓:アルミ樹脂複合窓 リフォーム専用枠での納まり例(樹脂額縁 見込大 見切材付)
|
||
|
|
詳細図
マドリモ 戸建用 樹脂額縁 新設窓:アルミ樹脂複合窓 ジョイント枠での納まり例(樹脂額縁 見込代 見切材付)
|
||
|
|
詳細図
マドリモ 戸建用 室内樹脂カバー材 新設枠:アルミ樹脂複合窓 リフォーム専用枠での納まり例(見切材として目板を使用)
|
||
|
|
詳細図
マドリモ 戸建用 アルミ額縁 新設窓:アルミ樹脂複合窓 リフォーム専用枠での納まり例
|
||
|
|
詳細図
マドリモ 戸建用 アルミ額縁 新設窓:アルミ樹脂複合窓 ジョイント枠での納まり例
|
||
|
|
詳細図
マドリモ 戸建用 外部モール(たて枠) 新設窓:樹脂窓 ジョイント枠での納まり例
|
||
|
|
詳細図
マドリモ 戸建用 外部モール(たて枠) 新設窓:アルミ樹脂複合窓での納まり例
|
||
|
|
詳細図
マドリモ 戸建用 別売品 居室仕様 【既設窓】:引違い窓(内付型) 例:ハイサッシ5H 【新設窓】:樹脂窓 引違い窓 ジョイント枠
|
||
|
|
詳細図
マドリモ 戸建用 居室仕様 【既設窓】:引違い窓(外付型) 例:アルミサッシ3HB-U 【新設窓】:トリプルガラス樹脂窓 開き窓テラス(2連窓)
|
||
|
|
詳細図
マドリモ 戸建用 居室仕様 【既設窓】:引違い窓:二重窓 例:トワイエル WHP-1E 【新設窓】:トリプルガラス樹脂窓 たてすべり出し窓+FIX窓(2連窓)
|
||
|
|
詳細図
マドリモ 戸建用 居室仕様 【既設窓】:FIX窓:樹脂窓 例:プラマード 【新設窓】:トリプルガラス樹脂窓 たてすべり出し窓
|
||
|
|
詳細図
マドリモ 戸建用 居室仕様 【既設窓】:FIX窓:樹脂窓 例:プラマード 【新設窓】:トリプルガラス樹脂窓 開き窓テラス(単窓)
|
||
|
|
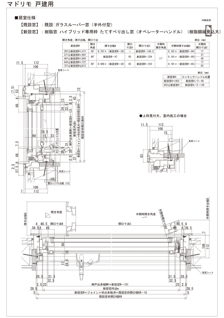
詳細図
マドリモ 戸建用 居室仕様 【既設窓】:既設:ガラスルーバー窓 (半外付型) 【新設窓】:樹脂窓 ハイブリッド専用枠 たてすべり出し窓(オペレーターハンドル) (樹脂額縁見込大)
|
||
|
|
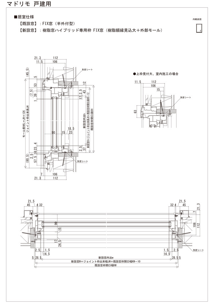
詳細図
マドリモ 戸建用 居室仕様 【既設窓】:FIX窓(半外付型) 【新設窓】:樹脂窓ハイブリッド専用枠 FIX窓(樹脂額縁見込大+外部モール)
|
||
|
|
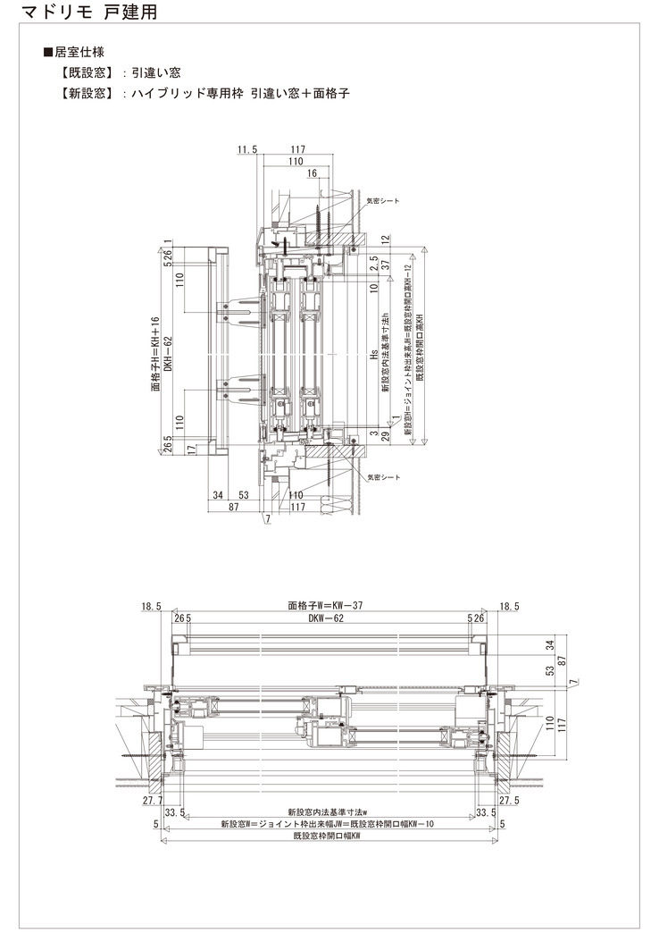
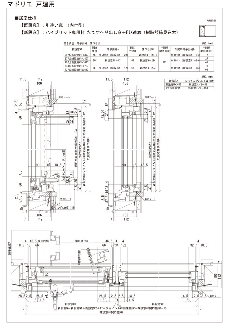
詳細図
マドリモ 戸建用 居室仕様 【既設窓】:引違い窓 (内付型) 【新設窓】:ハイブリッド専用枠 たてすべり出し窓+FIX連窓(樹脂額縁見込大)
|
||
|
|
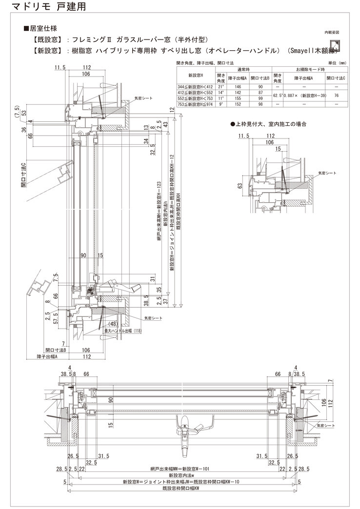
詳細図
マドリモ 戸建用 居室仕様 【既設窓】:フレミングII ガラスルーバー窓(半外付型) 【新設窓】:樹脂窓 ハイブリッド専用枠 すべり出し窓(オペレーターハンドル) (Smayell木額縁)
|
||
|
|
詳細図
マドリモ 戸建用 居室仕様 【既設窓】:引違い窓(半外付型) 例:フレミングII 【新設窓】:樹脂窓 引違い窓 ハイブリッド専用枠 樹脂額縁見込大
|
||
|
|
詳細図
マドリモ 戸建用 居室仕様 【既設窓】:引違い窓(半外付型) 例:フレミングII 【新設窓】:樹脂窓 引違いテラス戸 ハイブリッド専用枠 樹脂額縁見込大
|
||
|
|
詳細図
マドリモ 戸建用 居室仕様 【既設窓】:雨戸付引違い窓(半外付型) 例:フレミングII 【新設窓】:樹脂窓 引違い窓/引違いテラス戸 ハイブリッド専用枠 Smayell(スマエル)
|
||
|
|
詳細図
マドリモ 戸建用 居室仕様 【既設窓】:引違い窓(内付型) 例:フレミングII 【新設窓】:樹脂窓 引違いテラス戸 ハイブリッド専用枠 樹脂額縁見込小
|
||
|
|
詳細図
マドリモ 戸建用 居室仕様 【既設窓】:引違い窓(外付型) 例:フレミングII 【新設窓】:樹脂窓 引違い窓/引違いテラス戸 ハイブリッド専用枠 樹脂額縁見込大
|
||
|
|
詳細図
マドリモ 戸建用 居室仕様 【既設窓】:シャッター付引違い窓(外付型) 例:ハーフル 【新設窓】:樹脂窓 引違い窓 ハイブリッド専用枠 樹脂額縁見込大
|
||
|
|
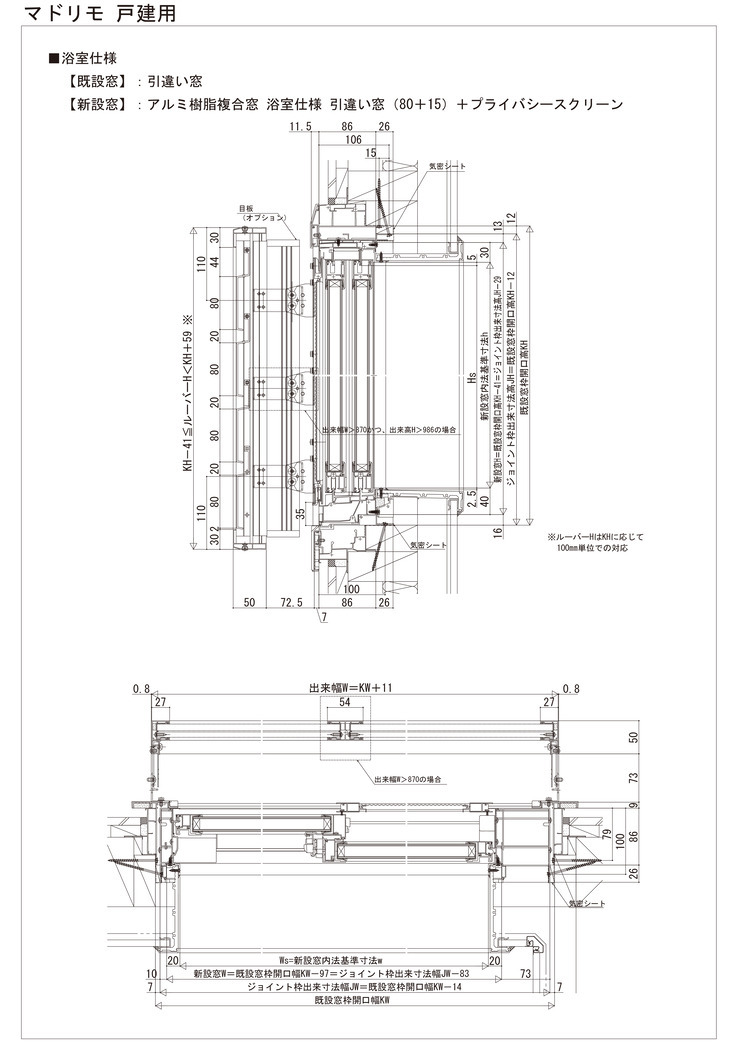
詳細図
マドリモ 戸建用 浴室仕様 窓単独交換 【既設窓】:面格子付引違い窓(半外付型) 例:フレミングII 【新設窓】:樹脂窓 引違い窓 ハイブリッド専用枠 樹脂額縁見込大
|
||
|
|
詳細図
マドリモ 戸建用 新設:樹脂窓 引違い窓(ハイブリッド専用枠) 開口幅
|
||
|
|
詳細図
マドリモ 戸建用 居室仕様 【既設窓】:引違い窓(半外付型) 例:アルミサッシ3LH-U 【新設窓】:樹脂窓 引違い窓
|
||
|
|
詳細図
マドリモ 戸建用 浴室仕様 窓単独交換 【既設窓】:引違い窓(半外付型) 例:フレミングII 【新設窓】:樹脂窓 引違い窓
|
||
|
|
詳細図
マドリモ 戸建用 浴室仕様 システムバス同時交換 【既設窓】:引違い窓(半外付型) 例:フレミングII 【新設窓】:樹脂窓 引違い窓
|
||
|
|
詳細図
マドリモ 戸建用 居室仕様 【既設窓】:引違い窓(半外付型) 例:ニューフレミング 【新設窓】:樹脂窓 引違いテラス戸 クレセント仕様
|
||
|
|
詳細図
マドリモ 戸建用 居室仕様 【既設窓】:雨戸付引違い窓 例:アルミサッシ3HR 【新設窓】:樹脂窓 引違い窓
|
||
|
|
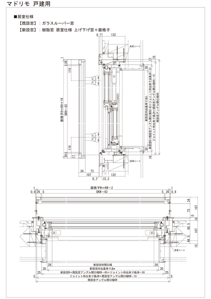
詳細図
マドリモ 戸建用 居室仕様 【既設窓】:面格子付ガラスルーバー窓 例:フレミングII 【新設窓】:APW 330 片上げ下げ窓
|
||
|
|
詳細図
マドリモ 戸建用 居室仕様 【既設窓】:FIX窓 例:フレミングII 【新設窓】:樹脂窓 たてすべり出し窓(グレモンハンドル)
|
||
|
|
詳細図
マドリモ 戸建用 浴室仕様 システムバス同時交換 【既設窓】:ガラスルーバー窓 例:フレミングII 【新設窓】:APW 330 たてすべり出し窓(オペレーターハンドル)
|
||
|
|
詳細図
マドリモ 戸建用 居室仕様【既設窓】:引違い窓(半外付型) 例:フレミングII 【新設窓】:アルミ樹脂複合窓 引違い窓(リフォーム専用枠)
|
||
|
|
詳細図
マドリモ 戸建用 居室仕様 【既設窓】:雨戸付引違い窓(半外付型) 例:フレミングII 【新設窓】:アルミ樹脂複合窓 引違い窓(リフォーム専用枠)
|
||
|
|
詳細図
マドリモ 戸建用 居室仕様 【既設窓】:雨戸付引違い窓(半外付型) 例:フレミングII 【新設窓】:アルミ樹脂複合窓 引違い窓
|
||
|
|
詳細図
マドリモ 戸建用 居室仕様 【既設窓】:引違い窓(内付型) 例:フレミングII 【新設窓】:アルミ樹脂複合窓 引違い窓(リフォーム専用枠)
|
||
|
|
詳細図
マドリモ 戸建用 浴室仕様 窓単独交換 【既設窓】:面格子付引違い窓(半外付型) 例:フレミングII 【新設窓】:アルミ樹脂複合窓 引違い窓(リフォーム専用枠)
|
||
|
|
詳細図
マドリモ 戸建用 居室仕様 【既設窓】:引違い窓(外付型) 例:フレミングII 【新設窓】:アルミ樹脂複合窓 引違い窓(リフォーム専用枠)
|
||
|
|
詳細図
マドリモ 戸建用 居室仕様 【既設窓】:シャッター付引違い窓(外付型) 例:ハーフル 【新設窓】:アルミ樹脂複合窓 引違い窓(リフォーム専用枠)
|
||