カテゴリー検索
窓種

キーワード検索
絞り込み すべて意匠図・建具表詳細図
商品名 確認図面 図面データのダウンロード
全て選択する
詳細図
APW 431 防火窓 シャッター付引違いテラス戸[軒天納まり用]
E20074012
詳細図
APW 431 防火窓 シャッター付引違いテラス戸 クレセント仕様 手動シャッター GR リモコンシャッター GR アングル付 窓額縁納まり テラス 2×4
E20074011
詳細図
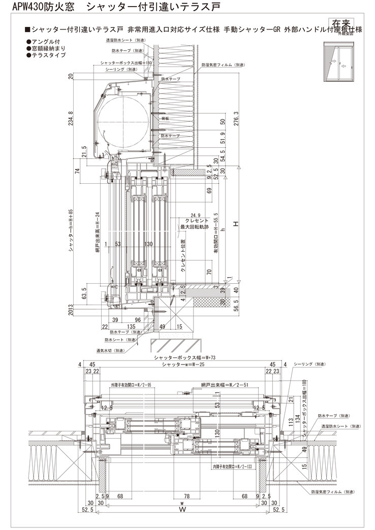
APW 430 防火窓 シャッター付引違い窓 非常用進入口対応サイズ仕様 手動シャッターGR 外部ハンドル付座板仕様 アングル付 額縁納まり 窓タイプ 在来
E25082002
詳細図
APW 431 防火窓 シャッター付引違い窓 非常用進入口対応サイズ仕様 手動シャッターGR 外部ハンドル付座板仕様 アングル付 額縁納まり テラスタイプ 在来
E25082006
詳細図
APW 430 防火窓 たてすべり出し窓 アングル無し 膳板・クロス納まり 横引きロール網戸を取付けた場合 在来
E20074007
詳細図
APW 430 防火窓 たてすべり出し窓 アングル無 膳板・クロス納まり 上げ下げロール網戸 XMWを取付けた場合 在来
E20074041
詳細図
APW 430 防火窓 すべり出し窓 アングル無 膳板・クロス納まり 横引きロール網戸を取付けた場合 在来
E20074043
詳細図
APW 430 防火窓 すべり出し窓 アングル無 膳板・クロス納まり 上げ下げロール網戸 XMWを取付けた場合 在来
E20074045
詳細図
APW 430 防火窓 FIX窓 アングル無 窓タイプ 膳板・クロス納まり 在来
E20074047
詳細図
APW 430 防火窓 シャッター付引違い窓 クレセント仕様 手動シャッター GR リモコンシャッター GR アングル無 クロス巻込み納まり 窓 在来
E20074013
詳細図
APW 431 防火窓 シャッター付引違いテラス戸 クレセント仕様 手動シャッター GR リモコンシャッター GR アングル無 クロス巻込み納まり テラス 在来
E20074014
詳細図
APW 330(アングル付/アングル無) 換気框 上框別体型 換気框付納まり図
E22083017
詳細図
APW 330 片上げ下げ窓 アングル付 窓額縁納まり 固定網戸を取付けた場合/クロス巻込み納まり 内開き網戸を取付けた場合 在来
E09077001
詳細図
APW 330 片上げ下げ窓 連窓 アングル付 窓額縁納まり 固定網戸を取付けた場合 2連窓 片上げ下げ窓+片上げ下げ窓/2連窓 片上げ下げ窓+FIX段窓 在来
E09077002
詳細図
APW 330 アングル付 片上げ下げ窓(真空トリプルガラス仕様) 窓額縁納まり 固定網戸を取付けた場合 在来
E13083003
詳細図
APW 330 面格子付片上げ下げ窓 アングル付 たて格子/井桁格子
E09077003
詳細図
APW 330 面格子付片上げ下げ窓 アングル付 ラチス格子/横格子
E09077004
詳細図
APW 330 FIX窓 アングル付 窓額縁納まり 在来
E09077013
詳細図
APW 330 FIX窓 アングル付 クロス巻込み納まり 在来
E09077014
詳細図
APW 330 FIX窓 アングル付 テラスタイプ 窓額縁納まり 在来
E25083003
詳細図
APW 330 FIX窓 アングル付 テラスタイプ 窓額縁納まり 2×4
E25083004
詳細図
APW 330 FIX窓 スリムフレーム アングル付 窓タイプの場合/テラスタイプの場合 在来
E21083004
詳細図
APW 330 FIX窓 スリムフレーム アングル付 テラスタイプ 2×4
E21083005
詳細図
APW 330 たてすべり出し窓 グレモンハンドル仕様 アングル付 膳板・クロス納まり 横引ロール網戸を取り付けた場合 在来
E19083004
詳細図
APW 330 たてすべり出し窓 グレモンハンドル仕様 アングル付 窓額縁納まり 上げ下げロール網戸 XMWを取付けた場合 在来
E19083005
詳細図
APW 330 たてすべり出し窓+FIX連窓 グレモンハンドル仕様 アングル付 窓額縁納まり 横引きロール網戸標準タイプを取付けた場合 在来
E19083006
詳細図
APW 330 たてすべり出し窓+FIX段窓 グレモンハンドル仕様 アングル付 窓額縁納まり 上げ下げロール網戸 XMWを取付けた場合 在来
E19083007
詳細図
APW 330 たてすべり出し窓 オペレーターハンドル仕様 アングル付 窓額縁納まり 固定網戸を取付けた場合 在来
E15083002
詳細図
APW 330 たてすべり出し窓 ウインドキャッチ連窓 アングル付 窓額縁納まり 横引きロール網戸を取付けた場合 在来
E21082007
詳細図
APW 330 たてすべり出し窓+FIX連窓 オペレーターハンドル仕様 アングル付 窓額縁納まり 固定網戸を取付けた場合 在来
E15083003
詳細図
APW 330 たてすべり出し窓+FIX段窓 オペレーターハンドル仕様 アングル付 窓額縁納まり 固定網戸を取付けた場合/たてすべり出し窓 ウインドキャッチ連窓 オペレーターハンドル仕様 アングル付 窓額縁納まり 固定網戸を取付けた場合 在来
E15083004
詳細図
APW 330 すべり出し窓 グレモンハンドル仕様 アングル付 クロス巻込み納まり 横引きロール網戸を取付けた場合 在来
E09077009
詳細図
APW 330 すべり出し窓 グレモンハンドル仕様 アングル付 窓額縁納まり 上げ下げロール網戸 XMWを取付けた場合 在来 
E09077010
詳細図
APW 330 すべり出し窓 グレモンハンドル仕様 アングル付 窓額縁納まり 内開き網戸を取付けた場合 在来
E13083001
詳細図
APW 330 すべり出し窓+FIX段窓 アングル付 窓額縁納まり 横引きロール網戸標準タイプを取付けた場合 在来
E09077011
詳細図
APW 330 すべり出し窓+FIX段窓 グレモンハンドル仕様 アングル付 窓額縁納まり 横引きロール網戸標準タイプを取付けた場合 在来
E09077031
詳細図
APW 330 すべり出し窓 オペレーターハンドル仕様 アングル付 窓額縁納まり 固定網戸を取付けた場合 在来
E15083005
詳細図
APW 330(アングル付) すべり出し窓+FIX連窓 2/3連窓 オペレーターハンドル仕様 アングル付 窓額縁納まり 固定網戸 在来
E15083006
詳細図
APW 330(アングル付) すべり出し窓+FIX段窓 オペレーターハンドル仕様 アングル付 窓額縁納まり 固定網戸 在来
E15083007
詳細図
APW 330 高所用すべり出し窓 アングル付 高窓用オペレーターを取付けた場合 在来
E17083001
詳細図
APW 330 高所用すべり出し窓 アングル付 電動ユニットを取付けた場合 在来
E17083002
詳細図
APW 330 高所用すべり出し窓 アングル付 折れハンドルを取付けた場合 在来
E17083003
詳細図
APW 330 外倒し窓 排煙錠仕様 アングル付 窓額縁納まり 在来
E18083012
詳細図
APW 330 引違い窓(防犯仕様) アングル付 窓額縁納まり 窓 在来
E19083013
詳細図
APW 330 片引き窓 アングル付 窓額縁納まり窓 在来
E09077015
詳細図
APW 330 両袖片引きタイプ アングル付 窓額縁納まり 窓 在来
E09077016
詳細図
APW 330 引違い窓 基本4色・内外観ブラック 戸先錠仕様 アングル付 窓額縁納まり 在来
E19083008
詳細図
APW 330 引違い窓 基本4色・内外観ブラック クレセント仕様 w060~183 アングル付 窓額縁納まり 在来
E19083009
詳細図
APW 330 引違い窓 基本4色・内外観ブラック クレセント仕様 w233~256 2枚建 アングル付 窓額縁納まり 在来
E19083010
詳細図
APW 330 引違い窓 基本4色・内外観ブラック クレセント仕様 w243~256 4枚建 アングル付 窓額縁納まり 在来
E19083011