カテゴリー検索
窓種

キーワード検索
絞り込み すべて意匠図・建具表詳細図
商品名 確認図面 図面データのダウンロード
全て選択する
詳細図
在来 APW430(アングル付) すべり出し窓+FIX段窓 オペレーターハンドル仕様 額縁納まり 固定網戸を取付た場合 A18(空気層18mmトリプルガラス)
E24075047
詳細図
在来 APW430(アングル付) 高所用すべり出し窓 高所用オペレーターを取付けた場合 A18(空気層18mmトリプルガラス)
E24075048
詳細図
在来 APW430(アングル付) 高所用すべり出し窓 電動ユニットを取付けた場合 A18(空気層18mmトリプルガラス)
E24075049
詳細図
在来 APW430(アングル付) 高所用すべり出し窓 折れハンドルを取付けた場合 A18(空気層18mmトリプルガラス)
E24075050
詳細図
在来 APW430(アングル付) 引違い窓 クレセント仕様 額縁納まり
E20074003
詳細図
在来 APW430(アングル付) 引違い窓 4枚建 クレセント仕様 額縁納まり
E20074025
詳細図
在来 APW430(アングル付) 面格子付引違い窓 額縁納まり ラチス・横格子
E20074026
詳細図
在来 APW430(アングル付) 面格子付引違い窓 額縁納まり たて・井桁格子
E20074027
詳細図
在来 APW430(アングル付) シャッター付引違い窓 クレセント仕様 リモコンスリットシャッターGR 額縁納まり
E20074028
詳細図
在来 APW430(アングル付) シャッター付引違い窓 クレセント仕様 リモコン・手動シャッター 額縁納まり
E20074029
詳細図
在来 APW430(アングル付) シャッター付引違い窓 クレセント仕様 手動・リモコンシャッターGR クロス巻込み納まり
E20083002
詳細図
在来 APW431(アングル付) 引違いテラス戸 クレセント仕様 額縁納まり
E20074004
詳細図
在来 APW431(アングル付) 引違いテラス戸 4枚建 クレセント仕様 額縁納まり
E20074030
詳細図
在来 APW431(アングル付) 引違いテラス戸 クレセント仕様 額縁納まり 大型引手・サポートハンドル付
E20074031
詳細図
在来 APW431(アングル付) 引違いテラス戸 クレセント仕様 アングル付 額縁納まり サポート引手付 在来
E24075001
詳細図
2×4 APW431(アングル付) 引違いテラス戸 クレセント仕様
E20074032
詳細図
在来 APW431(アングル付) シャッター付引違いテラス戸 クレセント仕様 リモコンスリットシャッターGR 額縁納まり
E20074033
詳細図
在来 APW431(アングル付) シャッター付引違いテラス戸 クレセント仕様 リモコン・手動シャッター 額縁納まり
E20074035
詳細図
2×4 APW431(アングル付) シャッター付引違いテラス戸 クレセント仕様 リモコン・手動シャッター 額縁納まり
E20074034
詳細図
在来 APW431(アングル付) シャッター付引違いテラス戸 クレセント仕様 手動・リモコンシャッターGR クロス巻込み納まり
E20083001
詳細図
在来 APW431(アングル付) テラスドア 本州規格 額縁納まり 上げ下げロール網戸を取付けた場合 A18(空気層18mmトリプルガラス)
E24075013
詳細図
在来 APW431(アングル付) テラスドア 額縁納まり 上げ下げロール網戸を取付けた場合 2・3連窓 A18(空気層18mmトリプルガラス)
E24075014
詳細図
2×4 APW431(アングル付) テラスドア 額縁納まり 上げ下げロール網戸を取付けた場合 A18(空気層18mmトリプルガラス)
E24075015
詳細図
2×4 APW431(アングル付) テラスドア 額縁納まり 上げ下げロール網戸を取付けた場合 2・3連窓 A18(空気層18mmトリプルガラス)
E24075016
詳細図
在来 APW431(アングル付) 勝手口ドア 額縁納まり 横引きロール網戸を取付けた場合 A18(空気層18mmトリプルガラス)
E24075017
詳細図
在来 APW431(アングル付) 勝手口ドア 額縁納まり 上げ下げロール網戸を取付けた場合 A18(空気層18mmトリプルガラス)
E24075018
詳細図
2×4 APW431(アングル付) 勝手口ドア 額縁納まり 上げ下げロール網戸を取付けた場合 A18(空気層18mmトリプルガラス)
E24075019
詳細図
在来 APW430(アングル付) 防汚水切枠付タイプ 引違い窓・FIX窓に取付けた場合
E24075020
詳細図
在来 APW430(アングル付) 付加断熱工法(インセット納まり)参考納まり たてすべり出し窓 額縁納まり 断熱材厚さ:100mm、水切り見込み:120mm
E24078002
詳細図
在来 APW430(アングル付) 付加断熱工法(インセット納まり)参考納まり 引違い窓 クレセント仕様 額縁納まり 断熱材厚さ:100mm、水切り見込み:120mm
E24078004
詳細図
在来 APW431(アングル付) 付加断熱工法(インセット納まり)参考納まり 引違いテラス戸 クレセント仕様 額縁納まり 断熱材厚さ:100mm、水切り見込み:120mm
E24078001
詳細図
在来 APW431(アングル付) 付加断熱工法(インセット納まり)参考納まり シャッター付引違いテラス戸 クレセント仕様 リモコンスリットシャッターGR 額縁納まり 断熱材厚さ:100mmの場合
E24078003
詳細図
在来 APW430(アングル無) FIX窓 クロス巻込み納まり A18(空気層18mmトリプルガラス)
E24075021
詳細図
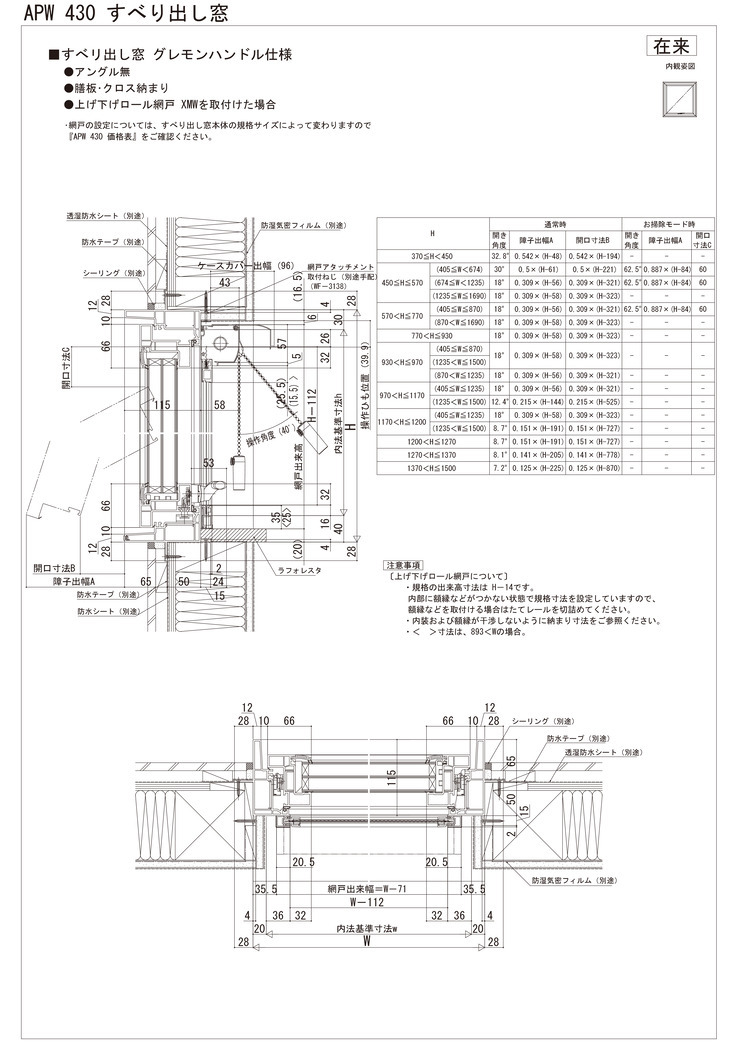
在来 APW430(アングル無) たてすべり出し窓 膳板・クロス納まり 横引きロール網戸 標準タイプを取付けた場合 A18(空気層18mmトリプルガラス)
E24075022
詳細図
在来 APW430(アングル無) たてすべり出し窓 膳板・クロス納まり 上げ下げロール網戸を取付けた場合 A18(空気層18mmトリプルガラス)
E24075023
詳細図
在来 APW430(アングル無) たてすべり出し窓+FIX連窓 クロス巻込み納まり 横引きロール網戸を取付けた場合 A18(空気層18mmトリプルガラス)
E24075024
詳細図
在来 APW430(アングル無) たてすべり出し窓+FIX段窓 グレモンハンドル仕様 クロス巻込み納まり 上げ下げロール網戸を取付けた場合 A18(空気層18mmトリプルガラス)
E24075025
詳細図
在来 APW430(アングル無) たてすべり出し窓 オペレーターハンドル仕様 クロス巻込み納まり 固定網戸を取付た場合 A18(空気層18mmトリプルガラス)
E24075051
詳細図
在来 APW430(アングル無) たてすべり出し窓+FIX連窓 オペレーターハンドル仕様 クロス巻込み納まり 固定網戸を取付た場合 A18(空気層18mmトリプルガラス)
E24075052
詳細図
在来 APW430(アングル無) たてすべり出し窓+FIX段窓/たてすべり出し窓 ウインドキャッチ連窓 オペレーターハンドル仕様 クロス巻込み納まり 固定網戸を取付た場合 A18(空気層18mmトリプルガラス)
E24075053
詳細図
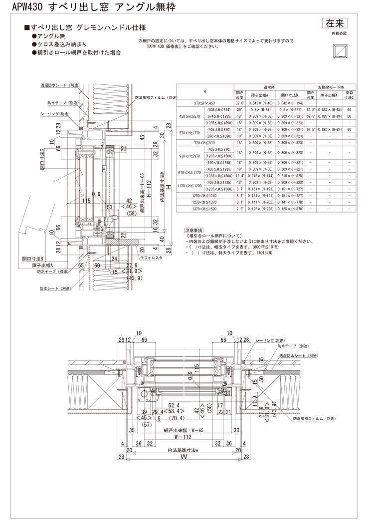
在来 APW430(アングル無) すべり出し窓 クロス巻込み納まり 横引きロール網戸を取付けた場合
E20075206
詳細図
在来 APW430(アングル無) すべり出し窓 クロス巻込み納まり 上げ下げロール網戸を取付けた場合
E20075207
詳細図
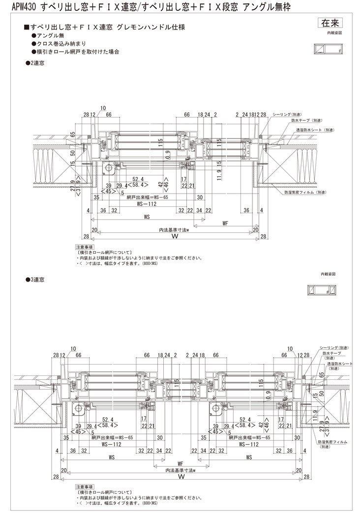
在来 APW430(アングル無) すべり出し窓+FIX連窓 クロス巻込み納まり 横引きロール網戸を取付けた場合
E20075208
詳細図
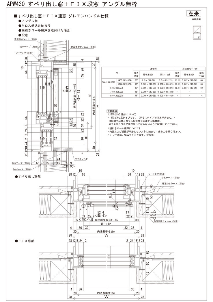
在来 APW430(アングル無) すべり出し窓+FIX段窓 クロス巻込み納まり 横引きロール網戸を取付けた場合
E20075209
詳細図
在来 APW430(アングル無) すべり出し窓 クロス巻込み納まり 横引きロール網戸(両引きタイプ)を取付けた場合
E20075210
詳細図
在来 APW430(アングル無) すべり出し窓 オペレーターハンドル仕様 アングル無 クロス巻込み納まり 固定網戸を取付けた場合 A18(空気層18mmトリプルガラス)
E24075054
詳細図
在来 APW430(アングル無) すべり出し窓+FIX連窓 オペレーターハンドル仕様 アングル無 クロス巻込み納まり 固定網戸を取付けた場合 A18(空気層18mmトリプルガラス)
E24075055
詳細図
在来 APW430(アングル無) すべり出し窓+FIX段窓 オペレーターハンドル仕様 アングル無 クロス巻込み納まり 固定網戸を取付けた場合 A18(空気層18mmトリプルガラス)
E24075056
詳細図
在来 APW430(アングル無) 高所用すべり出し窓 アングル無 高所用オペレーターを取付けた場合 A18(空気層18mmトリプルガラス)
E24075057
詳細図
在来 APW430(アングル無) 高所用すべり出し窓 アングル無 電動ユニットを取付けた場合 A18(空気層18mmトリプルガラス)
E24075058