カテゴリー検索
窓種

キーワード検索
絞り込み すべて意匠図・建具表詳細図
商品名 確認図面 図面データのダウンロード
全て選択する
詳細図
【2026年4月5日販売終了】樹脂製窓プラマード H 北海道地域限定 引違い窓 半外付型 スライド網戸 XMHを取付けた場合 窓
E18006001
詳細図
【2026年4月5日販売終了】樹脂製窓プラマード H 北海道地域限定 引違い窓 半外付型 スライド網戸 XMHを取付けた場合 テラス
E18006002
詳細図
【2026年4月5日販売終了】樹脂製窓プラマード H 北海道地域限定 引違い窓 大型引手・サポートハンドル付 半外付型/在来 テラス
E18006003
詳細図
【2026年4月5日販売終了】樹脂製窓プラマード H 北海道地域限定 両袖引違い窓 半外付型 スライド網戸 XMHを取付けた場合 窓 在来
E18006006
詳細図
【2026年4月5日販売終了】樹脂製窓プラマード H 北海道地域限定 両袖引違い窓 半外付型 スライド網戸 XMHを取付けた場合 テラスタイプ 在来
E18006007
詳細図
【2026年4月5日販売終了】樹脂製窓プラマード H 北海道地域限定 引違い窓 半外付型 障子開口寸法 窓・テラスタイプ 2枚建 在来
E18006008
詳細図
【2026年4月5日販売終了】樹脂製窓プラマード H 北海道地域限定 引違い窓 半外付型 障子開口寸法 テラスタイプ 大型引手付・サポートハンドル付 2枚建 在来
E18006009
詳細図
【2026年4月5日販売終了】樹脂製窓プラマード H 北海道地域限定 両袖引違い窓 半外付型 障子開口寸法 窓・テラスタイプ 在来
E18006011
詳細図
【2026年4月5日販売終了】樹脂製窓プラマード H 北海道地域限定 ウインスターシリーズ樹脂タイプ ウインスター FIX窓(スクエア) 在来
E18006014
詳細図
【2026年4月5日販売終了】樹脂製窓プラマード H 北海道地域限定 ウインスターシリーズ樹脂タイプ ウインスター FIX窓(スリット) 在来
E18006015
詳細図
【2026年4月5日販売終了】樹脂製窓プラマード H 北海道地域限定 ウインスター スクエアすべり出し窓/スクエアすべり出し窓+FIX連窓 在来
E20006001
詳細図
【2026年4月5日販売終了】樹脂製窓プラマード H 北海道地域限定 ウインスター スクエアすべり出し窓+FIX連窓 2連窓・3連窓 在来
E20006002
詳細図
【2026年4月5日販売終了】樹脂製窓プラマード H 北海道地域限定 ウインスター 横スリットすべり出し窓/たてスリットすべり出し窓 在来
E20006003
詳細図
【2026年4月5日販売終了】樹脂製窓プラマード H 北海道地域限定 ウインスターシリーズ樹脂タイプ ウインスター たてスリットすべり出し窓+FIX段窓 在来
E18006017
詳細図
【2026年4月5日販売終了】樹脂製窓プラマード H 北海道地域限定 FIX窓  在来
E18006020
詳細図
【2026年4月5日販売終了】樹脂製窓プラマード H 北海道地域限定 FIX窓+FIX段窓 在来
E20006004
詳細図
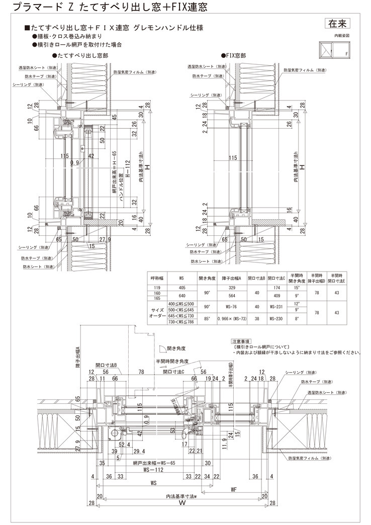
【2026年4月5日販売終了】樹脂製窓プラマード H 北海道地域限定 たてすべり出し窓/たてすべり出し窓+FIX連窓 2連窓 グレモンハンドル仕様 在来
E18006021
詳細図
【2026年4月5日販売終了】樹脂製窓プラマード H 北海道地域限定 たてすべり出し窓+FIX段窓/たてすべり出し窓+FIX連窓 3連窓 グレモンハンドル仕様 在来
E18006047
詳細図
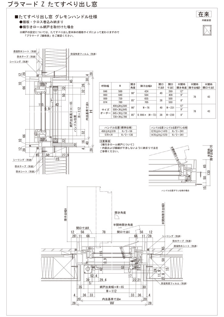
【2026年4月5日販売終了】樹脂製窓プラマード H 北海道地域限定 たてすべり出し窓 グレモンハンドル仕様 在来
E18006022
詳細図
【2026年4月5日販売終了】樹脂製窓プラマード H 北海道地域限定 外開き窓(片開き窓)/外開き窓(片開き窓)+FIX連窓 2連窓 上げ下げロール網戸 XMWを取付けた場合 在来
E18006023
詳細図
【2026年4月5日販売終了】樹脂製窓プラマード H 北海道地域限定 外開き窓(片開き窓)+FIX連窓 3連窓 横引きロール網戸を取付けた場合 在来
E18006048
詳細図
【2026年4月5日販売終了】樹脂製窓プラマード H 北海道地域限定 外開き窓(両開き窓) 上げ下げロール網戸XMWを取付けた場合 在来
E04192017
詳細図
【2026年4月5日販売終了】樹脂製窓プラマード H 北海道地域限定 外開き窓(両開き窓) 横引きロール網戸を取付た場合 在来
E22065003
詳細図
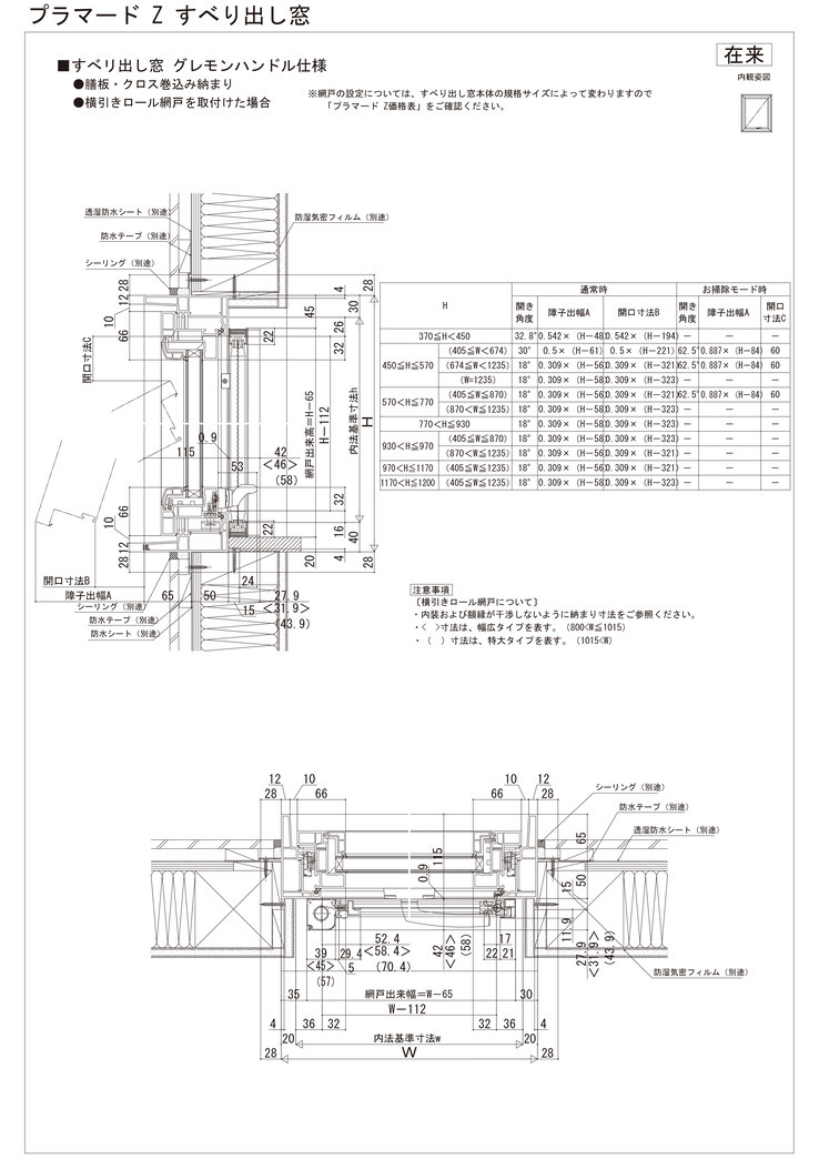
【2026年4月5日販売終了】樹脂製窓プラマード H 北海道地域限定 すべり出し窓 グレモンハンドル仕様 上げ下げロール網戸 XMWを取付けた場合 在来
E18006027
詳細図
【2026年4月5日販売終了】樹脂製窓プラマード H 北海道地域限定 すべり出し窓+FIX連窓 2連窓・3連窓 グレモンハンドル仕様 上げ下げロール網戸 XMWを取付けた場合 在来
E18006043
詳細図
【2026年4月5日販売終了】樹脂製窓プラマード H 北海道地域限定 すべり出し窓+FIX段窓 グレモンハンドル仕様 横引きロール網戸XMYを取付けた場合 在来
E18006058
詳細図
【2026年4月5日販売終了】樹脂製窓プラマード H 北海道地域限定 すべり出し窓 グレモンハンドル仕様 上げ下げロール網戸 XMWを取付けた場合 大型ヒンジ仕様 在来
E18006029
詳細図
【2026年4月5日販売終了】樹脂製窓プラマード H 北海道地域限定 高所用換気窓(すべり出し窓タイプ) 固定網戸 XMFを取付けた場合 在来
E18006030
詳細図
【2026年4月5日販売終了】樹脂製窓プラマード H 北海道地域限定 外倒し窓 在来
E18006031
詳細図
【2026年4月5日販売終了】樹脂製窓プラマード H 北海道地域限定 セカンドドア ドアクローザー仕様 横引きロール網戸 XMD(汎用)を取付けた場合 在来
E15006035
詳細図
【2026年4月5日販売終了】樹脂製窓プラマード H 北海道地域限定 片開きドア 上げ下げロール網戸 XMWを取付けた場合 在来
E15006037
詳細図
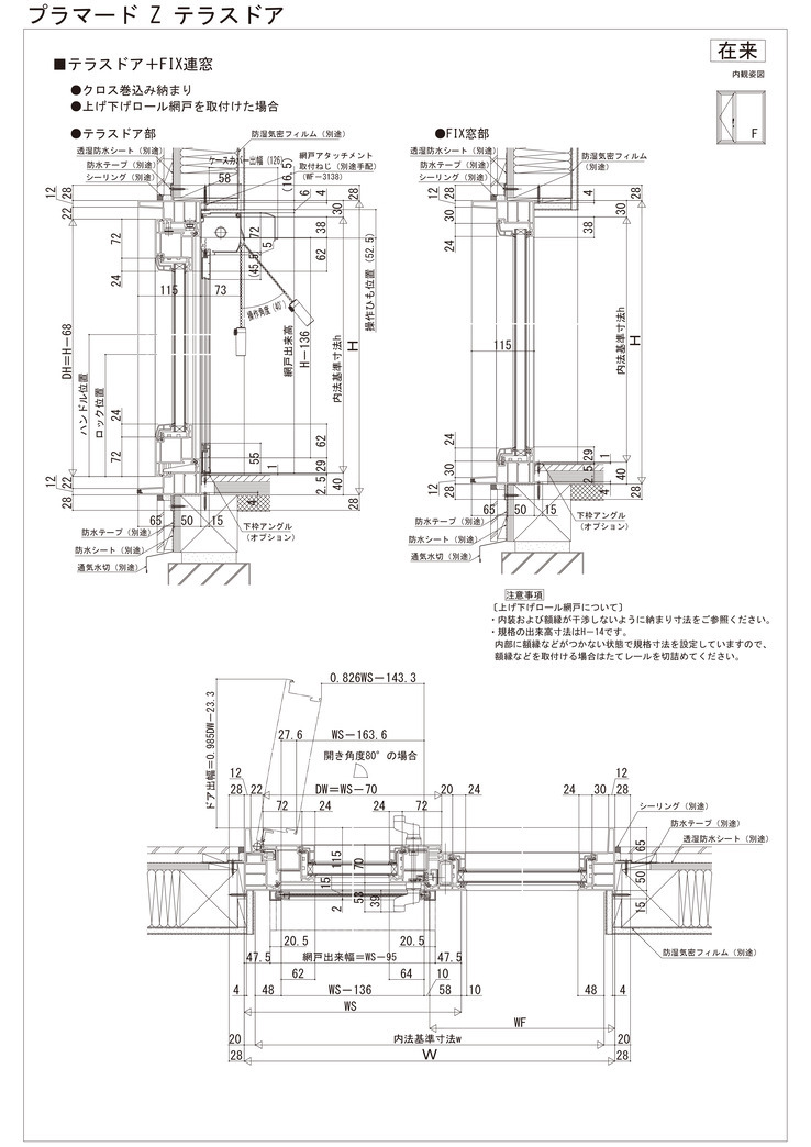
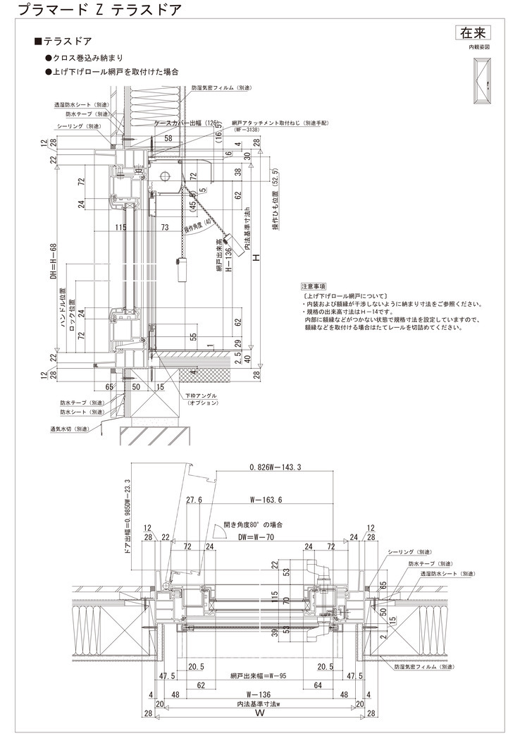
【2026年4月5日販売終了】樹脂製窓プラマード H 北海道地域限定 テラスドア 上げ下げロール網戸 XMWを取付けた場合 在来
E18006046
詳細図
【2026年4月5日販売終了】樹脂製窓プラマード H 北海道地域限定 テラスドア 上げ下げロール網戸 XMWを取付けた場合 2連窓・3連窓 在来
E18006039
詳細図
【2026年4月5日販売終了】樹脂製窓プラマード H 北海道地域限定 テラスドア 横引きロール網戸 XMYを取付けた場合 在来
E18006040
詳細図
【2026年4月5日販売終了】樹脂製窓プラマード H 北海道地域限定 連窓方立 直線方立 FIX窓+たてすべり出し窓 在来
E18006041
詳細図
【2026年4月5日販売終了】樹脂製窓プラマード H 北海道地域限定 RC納まり参考例 引違い窓/たてすべり出し窓の場合 在来
E18006045
詳細図
エピソードII 防火窓 GNEO 引違い窓 窓タイプ 半外付型/アングル一体枠 在来
E21141016
詳細図
エピソードII 防火窓 GNEO 面格子付引違い窓 たて格子・井桁格子・横格子・ラチス格子 半外付型/アングル一体枠 在来
E21141017
詳細図
エピソードII 防火窓 GNEO 引違い窓 窓タイプ クレセントダウンオーダー対応品 半外付型/アングル一体枠 在来
E21141018
詳細図
エピソードII 防火窓 GNEO 引違い窓 テラスタイプ 半外付型/アングル一体枠 在来
E21141019
詳細図
エピソードII 防火窓 GNEO 引違い窓 テラスタイプ 2×4 テラス/2×4
E21141021
詳細図
エピソードII 防火窓 GNEO 引違い窓 テラスタイプ (耐熱強化複層ガラス仕様) 半外付型/アングル一体枠 在来
E21141023
詳細図
エピソードII 防火窓 GNEO 引違い窓 テラスタイプ サポート引手・サポートハンドル付 半外付型/アングル一体枠 在来
E21141020
詳細図
エピソードII 防火窓 GNEO 引違い窓 テラスタイプ サポート引手・サポートハンドル付 2×4
E21141022
詳細図
エピソードII 防火窓 GNEO 下枠フラット引違い窓 半外付型 「リウッドデッキ」との組合せの場合 在来
E21141006
詳細図
エピソードII 防火窓 GNEO 下枠フラット引違い窓 サポート引手・サポートハンドル付 半外付型 リウッドデッキ200との組合せの場合 在来
E21141007
詳細図
エピソードII 防火窓 GNEO シャッター付引違い窓 窓タイプ 半外付型/アングル一体枠 手動シャッターの場合・リモコンシャッターの場合 在来
E17145019
詳細図
エピソードII 防火窓 GNEO シャッター付引違い窓 テラスタイプ 半外付型/アングル一体枠 手動シャッターの場合/リモコンシャッターの場合 在来
E17145020
詳細図
エピソードII 防火窓 GNEO シャッター付引違い窓 テラスタイプ 2×4 手動シャッターの場合/リモコンシャッターの場合 テラス/2×4
E17145021
詳細図
エピソードII 防火窓 GNEO シャッター付両袖片引き窓 リモコンシャッターGR テラスタイプ 在来
E20141001